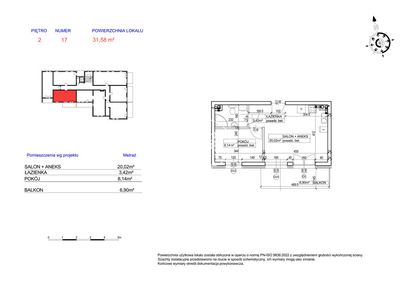
Mieszkanie na sprzedaż 2 pokoje Bydgoszcz Bocianowo-Śródmieście-Stare Miasto, 31,58 m2, 2 piętro
Oferta sprzedaży od Simple DOM
Bydgoszcz, Bocianowo-Śródmieście-Stare Miasto, Hetmańska
394 750 zł
12 500 zł/m2

Główne cechy mieszkania
Opis nieruchomości o powierzchni 31,58 m2
Oferta wysłana z programu dla biur nieruchomości ASARI CRM