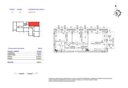
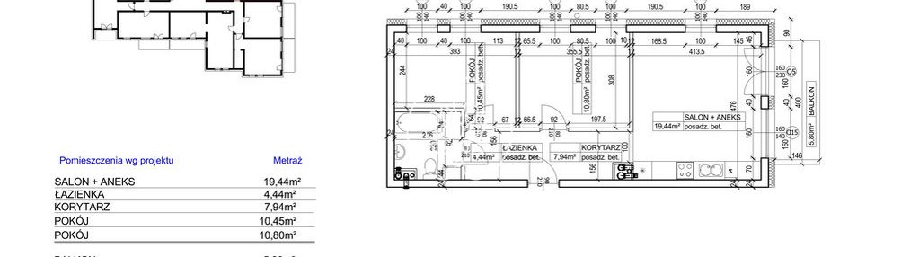
Mieszkanie na sprzedaż 3 pokoje Bydgoszcz Bocianowo-Śródmieście-Stare Miasto, 53,07 m2, 2 piętro
Oferta sprzedaży od Simple DOM
Bydgoszcz, Bocianowo-Śródmieście-Stare Miasto, Hetmańska
583 770 zł
11 000 zł/m2

Główne cechy mieszkania
Opis nieruchomości o powierzchni 53,07 m2
Oferta wysłana z programu dla biur nieruchomości ASARI CRM