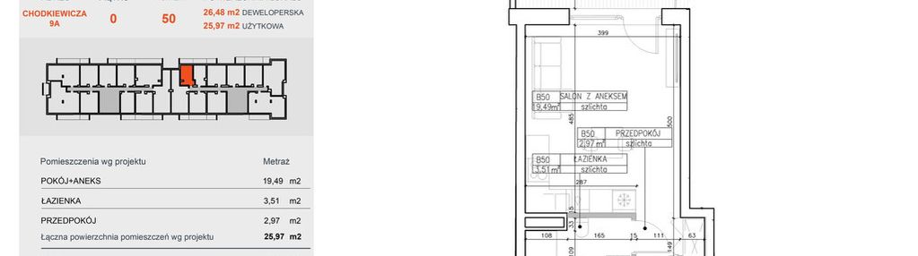
Mieszkanie na sprzedaż 1 pokój Bydgoszcz Bocianowo-Śródmieście-Stare Miasto, 25,97 m2, 1 piętro
Oferta sprzedaży od Simple DOM
Bydgoszcz, Bocianowo-Śródmieście-Stare Miasto, Jana Karola Chodkiewicza
360 983 zł
13 900 zł/m2

Główne cechy mieszkania
Opis nieruchomości o powierzchni 25,97 m2
Oferta wysłana z programu dla biur nieruchomości ASARI CRM