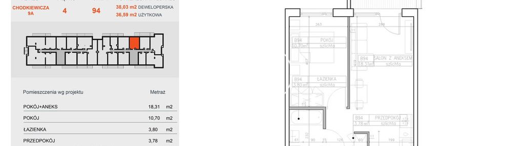
Mieszkanie na sprzedaż 2 pokoje Bydgoszcz Bocianowo-Śródmieście-Stare Miasto, 36,43 m2, 2 piętro
Oferta sprzedaży od Simple DOM
Bydgoszcz, Bocianowo-Śródmieście-Stare Miasto, Jana Karola Chodkiewicza
502 734 zł
13 800 zł/m2

Główne cechy mieszkania
Opis nieruchomości o powierzchni 36,43 m2
Oferta wysłana z programu dla biur nieruchomości ASARI CRM