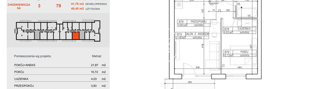
Mieszkanie na sprzedaż 2 pokoje Bydgoszcz Bocianowo-Śródmieście-Stare Miasto, 40,45 m2, 2 piętro
Oferta sprzedaży od Simple DOM
Bydgoszcz, Bocianowo-Śródmieście-Stare Miasto, Jana Karola Chodkiewicza
550 120 zł
13 600 zł/m2

Główne cechy mieszkania
Opis nieruchomości o powierzchni 40,45 m2
Oferta wysłana z programu dla biur nieruchomości ASARI CRM