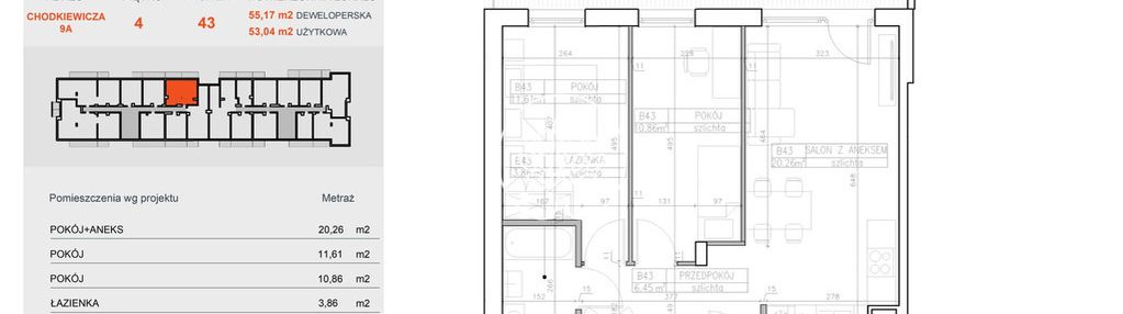
Mieszkanie na sprzedaż 3 pokoje Bydgoszcz Bocianowo-Śródmieście-Stare Miasto, 53,03 m2, 3 piętro
Oferta sprzedaży od Simple DOM
Bydgoszcz, Bocianowo-Śródmieście-Stare Miasto, Jana Karola Chodkiewicza
710 602 zł
13 400 zł/m2

Główne cechy mieszkania
Opis nieruchomości o powierzchni 53,03 m2
Oferta wysłana z programu dla biur nieruchomości ASARI CRM