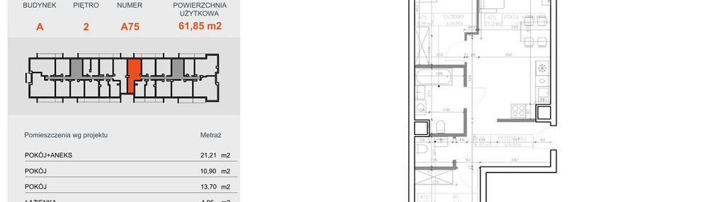
Mieszkanie na sprzedaż 3 pokoje Bydgoszcz Bocianowo-Śródmieście-Stare Miasto, 60,28 m2, 2 piętro
Oferta sprzedaży od Simple DOM
Bydgoszcz, Bocianowo-Śródmieście-Stare Miasto, Jana Karola Chodkiewicza
729 388 zł
12 100 zł/m2

Główne cechy mieszkania
Opis nieruchomości o powierzchni 60,28 m2
Oferta wysłana z programu dla biur nieruchomości ASARI CRM