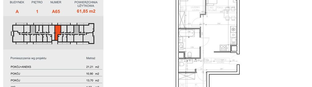
Mieszkanie na sprzedaż 3 pokoje Bydgoszcz Bocianowo-Śródmieście-Stare Miasto, 60,56 m2, 1 piętro
Oferta sprzedaży od Simple DOM
Bydgoszcz, Bocianowo-Śródmieście-Stare Miasto, Jana Karola Chodkiewicza
720 664 zł
11 900 zł/m2

Główne cechy mieszkania
Opis nieruchomości o powierzchni 60,56 m2
Oferta wysłana z programu dla biur nieruchomości ASARI CRM