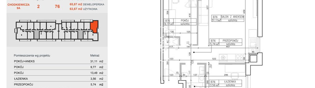
Mieszkanie na sprzedaż 3 pokoje Bydgoszcz Bocianowo-Śródmieście-Stare Miasto, 63,71 m2, 3 piętro
Oferta sprzedaży od Simple DOM
Bydgoszcz, Bocianowo-Śródmieście-Stare Miasto, Jana Karola Chodkiewicza
796 375 zł
12 500 zł/m2

Główne cechy mieszkania
Opis nieruchomości o powierzchni 63,71 m2
Oferta wysłana z programu dla biur nieruchomości ASARI CRM