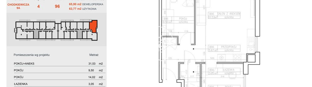
Mieszkanie na sprzedaż 3 pokoje Bydgoszcz Bocianowo-Śródmieście-Stare Miasto, 63,80 m2, 3 piętro
Oferta sprzedaży od Simple DOM
Bydgoszcz, Bocianowo-Śródmieście-Stare Miasto, Jana Karola Chodkiewicza
816 640 zł
12 800 zł/m2

Główne cechy mieszkania
Opis nieruchomości o powierzchni 63,80 m2
Oferta wysłana z programu dla biur nieruchomości ASARI CRM