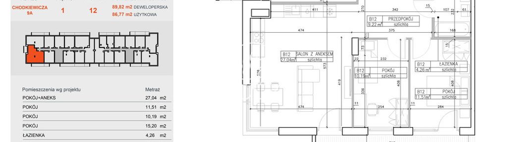
Mieszkanie na sprzedaż 4 pokoje Bydgoszcz Bocianowo-Śródmieście-Stare Miasto, 75,37 m2, 4 piętro
Oferta sprzedaży od Simple DOM
Bydgoszcz, Bocianowo-Śródmieście-Stare Miasto, Jana Karola Chodkiewicza
927 051 zł
12 300 zł/m2

Główne cechy mieszkania
Opis nieruchomości o powierzchni 75,37 m2
Oferta wysłana z programu dla biur nieruchomości ASARI CRM