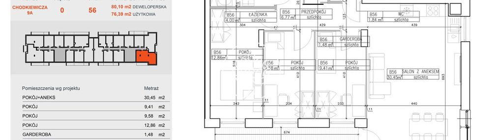
Mieszkanie na sprzedaż 4 pokoje Bydgoszcz Bocianowo-Śródmieście-Stare Miasto, 76,39 m2, 4 piętro
Oferta sprzedaży od Simple DOM
Bydgoszcz, Bocianowo-Śródmieście-Stare Miasto, Jana Karola Chodkiewicza
931 958 zł
12 200 zł/m2

Główne cechy mieszkania
Opis nieruchomości o powierzchni 76,39 m2
Oferta wysłana z programu dla biur nieruchomości ASARI CRM