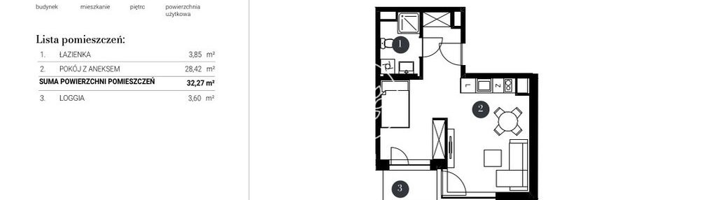
Mieszkanie na sprzedaż 1 pokój Bydgoszcz Bocianowo-Śródmieście-Stare Miasto, 33,29 m2, 4 piętro
Oferta sprzedaży od Simple DOM
Bydgoszcz, Bocianowo-Śródmieście-Stare Miasto, Toruńska
416 125 zł
12 500 zł/m2

Główne cechy mieszkania
Opis nieruchomości o powierzchni 33,29 m2
Oferta wysłana z programu dla biur nieruchomości ASARI CRM