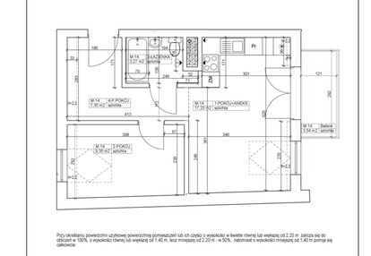
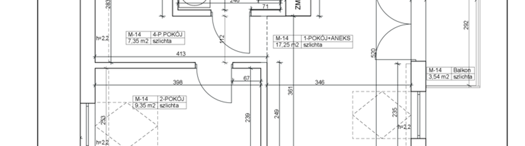
Nowe mieszkanie na sprzedaż 2 pokoje Bydgoszcz Stary Fordon, 37,22 m2, 2 piętro - nr 14
Oferta sprzedaży od P.W. PUBR Sp. z o.o.
Bydgoszcz, Stary Fordon, ul. Bydgoska 19 (11,5km od centrum Bydgoszczy)

Główne cechy mieszkania
Ważne informacje
Mieszkanie 2 pokojowe
Inwestycja
Bydgoska 19
kujawsko-pomorskie, Bydgoszcz, Stary Fordon
Mieszkania z widokiem na Wisłę! Nasza nowa inwestycja to budynek mieszkalny o 3 kondygnacjach naziemnych z poddaszem użytkowym w zabudowie pierzejowej ul. Bydgoskiej, w którym zaprojektowano 16 mieszkań: od 30 do 57 m2, lokal usługowy oraz 6 garaży. Dwa mieszkania w parterze przystosowano w pełni dla potrzeb osób niepełnosprawnych. Inwestycja położona jest w dzielnicy Starego Fordonu, który w ramach rewitalizacji został zmodernizowany i odnowiony. Przebudowano wiele uliczek, odnowiono kamienice a płytę rynku wyposażono w efektowną fontannę. Nabrzeże Wisły wyposażono w oświetlenie, ławki i siedziska, stojaki na rowery, w kamery obrotowe, które zostały połączone z monitoringiem miejskim. Wzmocnienie potencjału nadbrzeża posłuży Mieszkańcom na korzystanie z transportu wodnego i stało się miejscem wypoczynku, rekreacji oraz doskonałym punktem widokowym na Wisłę. Budynek jest świetnie zlokalizowany. Przystanki komunikacji miejskiej znajdują się zaraz obok a najbliższy sieciowy market spożywczego odległy jest o kilka kroków. Po drugiej stronie ulicy, przy Synagodze, niedawno powstał letni ogródek z ofertą gastronomiczną.
Dostępne mieszkania w tej inwestycji
| Nazwa | Rzut | Pokoje | Powierzchnia | Piętro | Cena | Status |