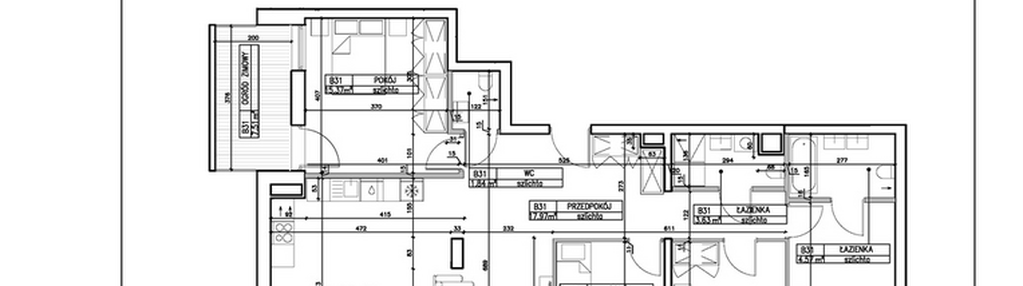
Nowe mieszkanie na sprzedaż 5 pokoi Bydgoszcz Bocianowo-Śródmieście-Stare Miasto, 126,44 m2, 3 piętro - nr B31
Oferta sprzedaży od Grupa Moderator
Bydgoszcz, Bocianowo-Śródmieście-Stare Miasto, ul. Chodkiewicza 9 (1,3km od centrum Bydgoszczy)

Główne cechy mieszkania
Ważne informacje
Mieszkanie 5 pokojowe
Dodatkowe informacje
Udogodnienia

Plac zabaw

Winda

Klimatyzacja
Przyroda

Park
Inwestycja
Symfonia - Chodkiewicza 9
kujawsko-pomorskie, Bydgoszcz, Bocianowo-Śródmieście-Stare Miasto
Dostępne mieszkania w tej inwestycji
| Nazwa | Rzut | Pokoje | Powierzchnia | Piętro | Cena | Status |