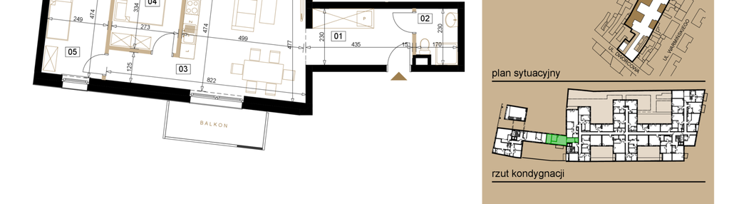
Nowe mieszkanie na sprzedaż 3 pokoje Bydgoszcz Bocianowo-Śródmieście-Stare Miasto, 61,91 m2, 1 piętro - nr B1
Oferta sprzedaży od Inwestycje Empio Sp. z o.o.
Bydgoszcz, Bocianowo-Śródmieście-Stare Miasto, ul. Dworcowa 28 (0,3km od centrum Bydgoszczy)

Główne cechy mieszkania
Ważne informacje
Mieszkanie 3 pokojowe
Dodatkowe informacje
Udogodnienia

Rowerownia

Usługi w budynku

Klimatyzacja

Inteligentny dom

Winda
Inwestycja
Dworcowa 28
kujawsko-pomorskie, Bydgoszcz, Bocianowo-Śródmieście-Stare Miasto
O INWESTYCJI Inwestycja Dworcowa 28 Bydgoszcz zakłada realizację 138 mieszkań i 3 lokali usługowych w 6-piętrowym budynku z halą garażową , spójnie wpisującym się w sąsiednie, historyczne zabudowania. Lokale będą zróżnicowane pod względem metrażu i układu. Duża część mieszkań będzie miała do dyspozycji własnościowe, przynależne do mieszkania tarasy o powierzchni do 100 m2 . Większość lokali będzie posiadała balkony i loggie . Inwestycję wyróżnia również dostępność apartamentów dwupoziomowych z tarasami na dachu czy przestronnych mieszkań zlokalizowanych od ulicy Dworcowej. W hali garażowej i na piętrach będą do dyspozycji komórki lokatorskie. Trzy klatki schodowe i szybkie ciche windy zapewnią dostęp do mieszkań bezpośrednio z hali garażowej . Budynek będzie wyposażony w monitoring i pomieszczenie dla stróża, a każdy lokal zabezpieczony drzwiami antywłamaniowymi. Instalacja w mieszkaniach systemu Smart home by Somfy pozwoli mieszkańcom korzystać z najnowocześniejszych technologii inteligentnego domu. Za pośrednictwem urządzeń smart home można sterować zdalnie, jak i manualnie zaworami wody, oświetleniem ,gniazdkami prądu czy też temperaturą ogrzewania. Nowoczesne filtry antysmogowe zainstalowane przy każdym nawiewniku okiennym zabezpieczą wnętrza przed zanieczyszczeniami, alergenami i owadami, a wydajna wentylacja mechaniczna zapewni dopływ i wymianę powietrza przez cały rok. Dodatkowo, w każdym mieszkaniu będzie możliwość zainstalowania klimatyzacji. montażu rolet lub żaluzji okiennych. Lokale zostaną wyposażone w światłowód w celu podłączenia szybkiego Internetu. Budynek ma spełniać najnowsze normy izolacyjności cieplnej – trzyszybowe okna, termoizolacyjne łączniki dodatkowych przestrzeni zapobiegające utracie ciepła z wnętrza, ogrzewanie i ciepła woda doprowadzane z sieci ciepłowniczej KPEC. Materiały użyte do budowy szkieletu budynku zapewnią bardzo dobrą ochronę akustyczną przed hałasem z zewnątrz, jak i zapewnią wyciszenie pomiędzy mieszkaniami i piętrami . Na dachu zainstalowana zostanie również fotowoltaika, aby zapewnić energię elektryczną do części wspólnych. Na etapie budowy będzie można wybrać ogrzewanie mieszkania poprzez grzejniki lub zdecydować się na ogrzewanie podłogowe. Klatki schodowe , korytarze i inne części wspólne zostaną wykończone z użyciem trwałych i nowoczesnych materiałów . W hali garażowej będzie możliwość instalacji prywatnych ładowarek do samochodów elektrycznych. Umiejscowienie mieszkań dopiero od pierwszej kondygnacji zapewni im bardzo dobre nasłonecznienie pomimo gęstej zabudowy środmiejskiej. Architektura nawiązująca do bydgoskiego Śródmieścia, w połączeniu ze świetną lokalizacją i rozwiązaniami technicznymi w budynku stworzy idealne miejsce do zamieszkania. Budowa nowych mieszkań i apartamentów w Bydgoszczy, ruszyła w czerwcu 2024 roku i jest w realizacji.
Dostępne mieszkania w tej inwestycji
| Nazwa | Rzut | Pokoje | Powierzchnia | Piętro | Cena | Status |