Nowe mieszkanie na sprzedaż 2 pokoje Bydgoszcz Bocianowo-Śródmieście-Stare Miasto, 41,65 m2, 2 piętro - nr 1.B.2.06
Oferta sprzedaży od Murapol Real Estate
Bydgoszcz, Bocianowo-Śródmieście-Stare Miasto, ul. Dworcowa (0,6km od centrum Bydgoszczy)

Główne cechy mieszkania
Ważne informacje
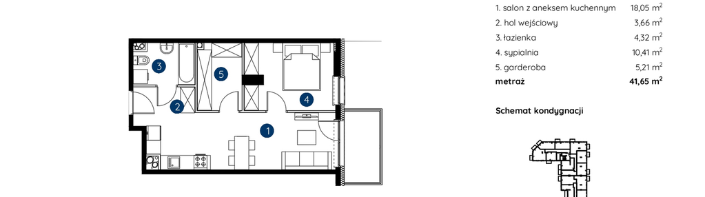
Mieszkanie 2 pokojowe
Dodatkowe informacje
Udogodnienia

Inteligentny dom

Usługi w budynku

Rowerownia

Winda
Przyroda

Park
Inwestycja
Murapol Rivo
kujawsko-pomorskie, Bydgoszcz, Bocianowo-Śródmieście-Stare Miasto
WYBRANE MIESZKANIA W PAKIECIE Z MIEJSCEM POSTOJOWYM W CENIE 30000 ZŁ- 40000 ZŁ I/LUB KOMÓRKĄ LOKATORSKĄ W CENIE 6000 ZŁ-13200 ZŁ . O SZCZEGÓŁY ZAPYTAJ DEWELOPERA. Murapol Rivo to wyjątkowy projekt mieszkaniowy, który uzupełni historyczną pierzeję ulicy Dworcowej i wprowadzi powiew nowoczesności w bydgoskim Śródmieściu. Współczesna forma architektoniczna budynku została harmonijnie wkomponowana w tkankę kamienic sięgających pamięcią przełomu XIX i XX wieku. Inwestycja została doskonale zlokalizowana na mapie Bydgoszczy. Zaledwie kilka chwil zajmuje stąd dotarcie nad malownicze bulwary nad Brdą. A już w kwadrans spacerem można dojść do Starego Rynku, po drodze zachwycając się monumentalnością Opery Nova czy zrewitalizowanej Wyspy Młyńskiej. Do dyspozycji bydgoszczan oddamy 122 nowoczesne mieszkania w 6-piętrowym budynku wraz z garażem podziemnym. Zróżnicowane metraże oraz kompaktowe układy 1-, 2-, 3- i 4-pokojowych lokali zapewnią komfort zarówno rodzinom z dziećmi, parom, singlom, jak i osobom poszukującym bezpiecznej przystani dla swoich oszczędności. Poznaj śródmieście Bydgoszczy w nowoczesnym mieszkaniu - Instalacja Home Management System pozwoli mieszkańcom korzystać z najnowocześniejszych technologii inteligentnego domu. Za pośrednictwem urządzeń smart home można sterować zdalnie, jak i manualnie zaworami wody, oświetleniem czy też temperaturą. - Pakiet antysmogowy jest w standardzie każdego mieszkania. Nowoczesne filtry antysmogowe zainstalowane przy każdym nawiewniku okiennym zabezpieczą wnętrza przed zanieczyszczeniami, alergenami i owadami. - Klatki schodowe i korytarze zostaną wykończone z użyciem trwałych gresów o delikatnym i stonowanym designie, dekoracyjnych paneli meblowych na ścianach czy energooszczędnej oprawy liniowe LED. W duże lustra i nierdzewne skrzynki pocztowe będą wyposażone hole wejściowe. - Do mieszkań na parterze będą przynależeć wybrukowane kostką tarasy z zielonymi ogródkami o powierzchni nawet 38 mkw. - Mieszkania na piętrach będą posiadały nawet dwa przestronne balkony lub loggie. Termoizolacyjne łączniki dodatkowych przestrzeni z mieszkania zapobiegną utracie ciepła z wnętrza. - Wysokie i duże okna portfenetrowe zapewnią bardzo dobre nasłonecznienie mieszkań.
Dostępne mieszkania w tej inwestycji
| Nazwa | Rzut | Pokoje | Powierzchnia | Piętro | Cena | Status |