Nowe mieszkanie na sprzedaż 4 pokoje Bydgoszcz Bartodzieje, 74,79 m2, 4 piętro - nr 55
Oferta sprzedaży od Budlex Sp. z o.o.
Bydgoszcz, Bartodzieje, ul. Gajowa 18 (2,5km od centrum Bydgoszczy)

Główne cechy mieszkania
Ważne informacje
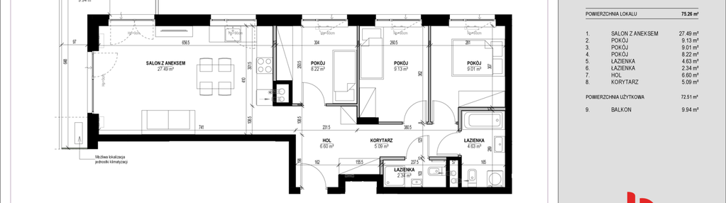
Mieszkanie 4 pokojowe
Dodatkowe informacje
Udogodnienia

Usługi w budynku

Winda

Plac zabaw
Przyroda

Jezioro

Park
Inwestycja
Gajowa bud. A
kujawsko-pomorskie, Bydgoszcz, Bartodzieje
Przestrzeń w dobrej formie to wartość, która wybiega daleko w przyszłość i nigdy nie straci na znaczeniu. Dlatego wybór adresu GAJOWA to doskonała decyzja - zarówno w kontekście jakości życia Twoich bliskich, jak i w sensie inwestycyjnym. Bez względu na to, który aspekt jest dla Ciebie ważniejszy - zawsze warto skorzystać z przestrzeni w dobrej formie. Dbałość o detal towarzyszy każdemu aspektowi projektu GAJOWA. Utrzymany w nowoczesnym, minimalistycznym stylu design w połączeniu z nowoczesnymi materiałami wysokiej jakości tworzą kompozycję o doskonałej funkcjonalności i ponadczasowej stylistyce.
Dostępne mieszkania w tej inwestycji
| Nazwa | Rzut | Pokoje | Powierzchnia | Piętro | Cena | Status |