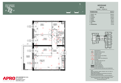
Nowe mieszkanie na sprzedaż 4 pokoje Bydgoszcz Bartodzieje, 80,61 m2, 7 piętro - nr 33
Oferta sprzedaży od Apro Investment Sp. z o.o.
RezerwacjaBydgoszcz, Bartodzieje, ul. Gajowa 72 (2,7km od centrum Bydgoszczy)

Główne cechy mieszkania
Ważne informacje
Mieszkanie 4 pokojowe
Dodatkowe informacje
Udogodnienia

Winda

Wózkarnia

Pomieszczenie rekreacyjne

Plac zabaw

Klimatyzacja

Rowerownia
Przyroda

Park

Staw
Inwestycja
Wspólnota Mieszkaniowa Gajowa 72
kujawsko-pomorskie, Bydgoszcz, Bartodzieje
Naszą wizję realizujemy pośród tętniących życiem obszarów, gdzie wszystko, co najbardziej potrzebne do funkcjonowania zawsze jest w zasięgu kilku kroków. Budynek składa się z trzech brył. Na dachu środkowej przewidziano zielony taras dostępny dla wszystkich mieszkańców. Zależy nam na kształtowaniu ekologicznej świadomości, dlatego w tej przestrzeni królować będzie łąka kwietna. Relaks uprzyjemnią designerskie leżaki. Liczy się wnętrze Budynek składać się będzie ze 116 komfortowych mieszkań wykończonych w wysokim standardzie. Każde z mieszkań zostanie wyposażone w instalację pod klimatyzację oraz rolety zewnętrzne w kolorze stolarki okiennej. Dodatkowym atutem są grzejniki kanałowe zamontowane w każdym z salonów. Dzięki temu rozwiązaniu aranżacja tej przestrzeni będzie czystą przyjemnością. Części wspólne zostaną wykończone z niezwykłą dbałością o szczegóły. Surowa estetyka elewacji, będzie miała swoją kontynuację w loftowych elementach wykończenia klatek schodowych, przełamana jednak zostanie wszędobylską zielenią paneli z dekoracyjnego mchu oraz eleganckiej tapety z motywem dżungli. Tapety z tej serii to świat ręcznie malowanych lub rysowanych wzorów, który wprowadza sztukę do naszych wnętrz. Całości dopełnią eleganckie zabudowy w kolorze drewna.
Dostępne mieszkania w tej inwestycji
| Nazwa | Rzut | Pokoje | Powierzchnia | Piętro | Cena | Status |