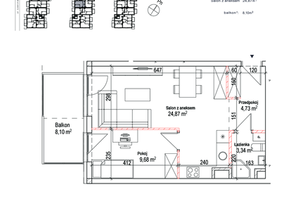
Nowe mieszkanie na sprzedaż 2 pokoje Bydgoszcz Brdyujście, 42,62 m2, 1 piętro - nr 7A
Oferta sprzedaży od Red Co.
Bydgoszcz, Brdyujście, ul. Łowicka 25 (8,1km od centrum Bydgoszczy)

Główne cechy mieszkania
Ważne informacje
Mieszkanie 2 pokojowe
Dodatkowe informacje
Udogodnienia

Plac zabaw

Patio / Dziedziniec

Winda
Przyroda

Rzeka

Park
Inwestycja
Łowicka 25
kujawsko-pomorskie, Bydgoszcz, Brdyujście
Nasza inwestycja Łowicka 25 to kameralne osiedle mieszkalne, na które składa się sześć, trójkondygnacyjnych budynków z lokalami o metrażach od 30 m² do 77 m². 68 nowoczesnych lokali, zaprojektowanych z myślą o różnorodności potrzeb przyszłych lokatorów. W ofercie inwestycji znajdują się kawalerki, mieszkania dwu, trzy, cztero i pięciopokojowe. Kompleks posiada również podziemną przestrzeń parkingową, skomunikowaną z częścią mieszkalną systemem wind, oraz zewnętrzne miejsca parkingowe do dyspozycji mieszkańców. Nasze doświadczenie branżowe przełożyliśmy na realizację Łowickiej 25, stosując przy tym sprawdzone metody: Nowoczesna architektura, uwzględniająca charakter krajobrazu i harmonizująca bryły budowli z otoczeniem, umożliwiając mieszkańcom osiedla funkcjonowanie w przestrzeni, w której wszystko jest na swoim miejscu, co sprzyja poczuciu spokoju. Eksperckie rozwiązania z zakresu wykorzystanych materiałów i stosowanych technologii gwarantują maksymalny komfort użytkowania. Zaaranżowane tereny zieleni wypełniają przestrzenie między budynkami mieszkalnymi, dając mieszkańcom możliwość relaksu na świeżym powietrzu i pomagając jednocześnie utrzymywać racjonalną gospodarkę cieplną.
Dostępne mieszkania w tej inwestycji
| Nazwa | Rzut | Pokoje | Powierzchnia | Piętro | Cena | Status |