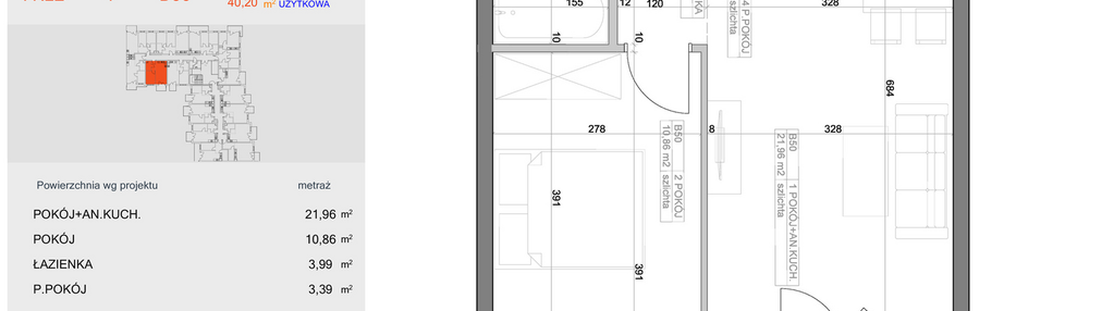
Nowe mieszkanie na sprzedaż 2 pokoje Bydgoszcz Bocianowo-Śródmieście-Stare Miasto, 40,20 m2, 4 piętro - nr I-B50
Oferta sprzedaży od Grupa Moderator
Bydgoszcz, Bocianowo-Śródmieście-Stare Miasto, ul. Rycerska 24 (1,4km od centrum Bydgoszczy)

Główne cechy mieszkania
Ważne informacje
Mieszkanie 2 pokojowe
Dodatkowe informacje
Udogodnienia

Plac zabaw

Winda

Rowerownia

Sala fitness
Przyroda

Park
Inwestycja
Industria etap I-B
kujawsko-pomorskie, Bydgoszcz, Bocianowo-Śródmieście-Stare Miasto
Dostępne mieszkania w tej inwestycji
| Nazwa | Rzut | Pokoje | Powierzchnia | Piętro | Cena | Status |