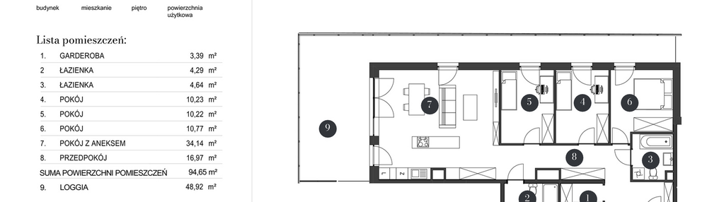
Nowe mieszkanie na sprzedaż 4 pokoje Bydgoszcz Wzgórze Wolności, 94,65 m2, 7 piętro - nr B.43
Oferta sprzedaży od Arkada Invest
Bydgoszcz, Wzgórze Wolności, ul. Toruńska 136 (2,1km od centrum Bydgoszczy)

Główne cechy mieszkania
Ważne informacje
Mieszkanie 4 pokojowe
Dodatkowe informacje
Udogodnienia

Winda

Inteligentny dom

Plac zabaw
Przyroda

Park
Inwestycja
Aspire
kujawsko-pomorskie, Bydgoszcz, Wzgórze Wolności
Aspire - Wyprzedza Oczekiwania Poznaj najnowszą inwestycję Arkada Invest. Z okazji 25-lecia rozpoczęliśmy budowę nowej inwestycji w Bydgoszczy, która definiuje miejską architekturę na nowo, łącząc nowoczesność i minimalizm z bezkompromisową naturą, która oplata każdy jej element. Tak powstaje projekt niezwykły…. ASPIRE. Łączymy to, co dotąd wydawało się niemożliwe do połączenia, tworząc przestrzeń, która inspiruje i przyciąga tych, którzy poszukują więcej niż tylko mieszkania. Apartamenty ASPIRE są już w sprzedaży. Skontaktuj się z nami i wybierz mieszkanie jako pierwszy.
Dostępne mieszkania w tej inwestycji
| Nazwa | Rzut | Pokoje | Powierzchnia | Piętro | Cena | Status |