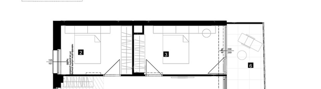
Nowe mieszkanie na sprzedaż 3 pokoje Dziwnów, 49,82 m2, 2 piętro - nr A.2.17
Oferta sprzedaży od Area Development
Dziwnów, ul. Kaprala Koniecznego 3

Główne cechy mieszkania
Ważne informacje
Mieszkanie 3 pokojowe
Dodatkowe informacje
Udogodnienia

Basen

Sauna

Winda

Klimatyzacja

Inteligentny dom

Sala fitness

Rowerownia
Przyroda

Morze
Inwestycja
Cisha Apartamenty Dziwnów
zachodniopomorskie, kamieński, Dziwnów
APARTAMENTY CISHA Luksusowy kompleks CISHA powstaje w pierwszej linii brzegowej, tuż przy plaży nadmorskiej miejscowości Dziwnów. Miejscowość ta ma charakter wypoczynkowy. Posiada port morski z całoroczną mariną jachtową. Wypoczywający tu będą mieli bezpośredni dostęp do plaży, zaś z apartamentów rozciągał się będzie widok na morze. W pierwszym etapie inwestycji powstaną 83 wykończone pod klucz apartamenty. Kompleks wyposażony zostanie w strefę rekreacji: dwupoziomową siłownię (w etapie I) oraz wewnętrzny basen wraz ze strefą saun (w etapie II). Każdy lokal posiadał będzie balkon lub taras. Przeszklone ściany apartamentów sprawią, że będzie się z nich rozciągać wspaniały widok na morze. Zaplanowano wiele udogodnień podnoszących standard inwestycji m.in.: • klimatyzacja w każdym apartamencie • ogrzewanie podłogowe • smart home • prywatne jacuzzi na tarasach ostatnich pięter • okiennice w oknach mieszkań zlokalizowanych na parterze i ostatnim piętrze • reprezentacyjne lobby • dwupoziomowa siłownia z widokiem na morze • podziemna hala garażowa • rowerownia oraz komórki lokatorskie • szafki na sprzęt plażowy przy wyjściu na plażę • monitoring oraz kontrola dostępu Apartamenty zostaną wykończone pod klucz. Oznacza to możliwość użytkowania od razu po odbiorze lokalu. Do decyzji właścicieli pozostawiamy wyposażenie w meble oraz zabudowę kuchenną. Służymy pomocą także w tym zakresie oferując współpracę z doświadczonym architektem wnętrz. Można skorzystać z dedykowanego pakietu lub stworzyć projekt według indywidualnych preferencji. Inwestorom oferujemy także wsparcie w zakresie zarządzania nieruchomością pod krótkoterminowy najem. Przewidywany termin przekazania gotowych lokali to III kwartał 2026 r.
Dostępne mieszkania w tej inwestycji
| Nazwa | Rzut | Pokoje | Powierzchnia | Piętro | Cena | Status |