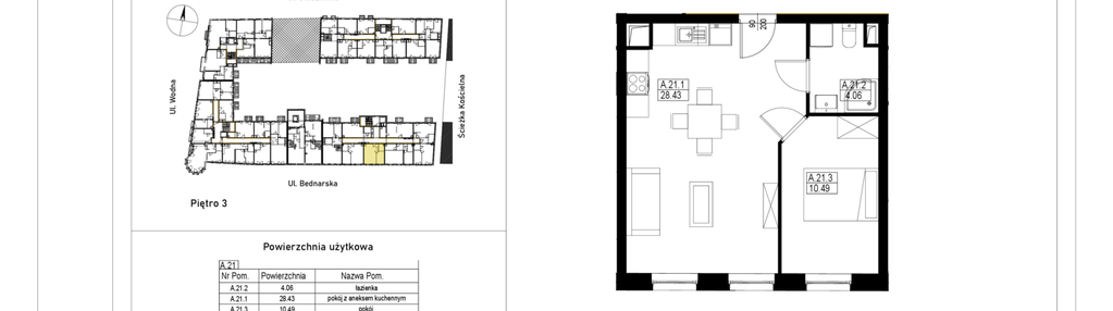
Nowe mieszkanie na sprzedaż 2 pokoje Elbląg, 42,98 m2, 3 piętro - nr A21
Oferta sprzedaży od WATERFRONT PAŁDYNA I WSPÓLNICY
Elbląg, ul. Studzienna (0,8km od centrum Elbląga)

Główne cechy mieszkania
Ważne informacje
Mieszkanie 2 pokojowe
Dodatkowe informacje
Udogodnienia

Wózkarnia

Usługi w budynku

Winda
Przyroda

Rzeka
Inwestycja
Bulvar etap II
warmińsko-mazurskie, Elbląg
Apartamenty z historią. Inwestycja w sercu Starego Miasta Elbląga W sercu Elbląga, na terenie Starego Miasta, powstaje wyjątkowa inwestycja zlokalizowana w ostatnim niezabudowanym kwartale tej części miasta – bezpośrednio nad Rzeką Elbląg, w sąsiedztwie reprezentacyjnych bulwarów spacerowych. To unikalna przestrzeń, w której historyczny charakter starówki spotyka się z nowoczesną architekturą i wysokim standardem wykończenia, tworząc miejsce o ponadczasowej wartości – zarówno do życia, jak i inwestowania. Projekt zakłada realizację nowoczesnego, wielofunkcyjnego zespołu zabudowy mieszkaniowo-usługowej, harmonijnie wpisującego się w otoczenie. Architektura inspirowana tradycyjnymi kamienicami została zaprojektowana z dbałością o detale i estetykę, łącząc elegancję z funkcjonalnością oraz współczesnymi rozwiązaniami. Bezpośrednie sąsiedztwo rzeki oraz terenów spacerowych tworzy wyjątkowy komfort codziennego życia – z dostępem do rekreacji, gastronomii i klimatycznych przestrzeni miejskich. W inwestycji przewidziano zróżnicowaną ofertę mieszkań – od kompaktowych lokali idealnych pod wynajem, po przestronne apartamenty z balkonami, tarasami i panoramicznym widokiem na rzekę. Najbardziej prestiżowe lokale oferują bezpośrednią ekspozycję na wodę, która stanowi jeden z najbardziej pożądanych atutów na rynku nieruchomości. Na parterach zaplanowano lokale usługowe, które ożywią przestrzeń i wpiszą się w naturalny, tętniący życiem charakter starówki. Lokalizacja inwestycji zapewnia dostęp do pełnej infrastruktury miejskiej – restauracji, kawiarni, instytucji kultury oraz atrakcji turystycznych, które budują unikalny klimat tej części miasta. Jednocześnie położenie gwarantuje bardzo dobrą komunikację z regionem – około 30 minut dzieli inwestycję od Gdańska, a bliskość takich kierunków jak Mierzeja Wiślana czy Mazury dodatkowo zwiększa jej atrakcyjność turystyczną i inwestycyjną. To projekt o wyjątkowym potencjale – wynikającym zarówno z prestiżowej lokalizacji nad wodą, jak i z ograniczonej podaży gruntów na Starym Mieście. Apartamenty w tej części Elbląga należą do najbardziej poszukiwanych i najlepiej wycenianych nieruchomości, co czyni inwestycję bezpieczną lokatą kapitału oraz atrakcyjną opcją pod wynajem krótko- i długoterminowy. W ofercie: • mieszkania o zróżnicowanych metrażach • apartamenty z widokiem na rzekę i bulwary • lokale z balkonami, tarasami • lokale usługowe na parterze Dlaczego warto? ✔ ostatni dostępny grunt na Starym Mieście ✔ bezpośrednie sąsiedztwo rzeki i terenów spacerowych ✔ prestiżowa i niepowtarzalna lokalizacja ✔ wysoki potencjał wzrostu wartości nieruchomości ✔ idealne pod najem (turystyczny i biznesowy) ✔ rozwijająca się infrastruktura i rosnąca atrakcyjność miasta Dla kogo? • klienci indywidualni ceniący lokalizacje premium • inwestorzy szukający stabilnej lokaty kapitału • osoby planujące zakup apartamentu pod wynajem Zainwestuj w lokalizację, której nie da się powtórzyć Stare Miasto w Elbląg to rynek o ograniczonej podaży i rosnącym znaczeniu turystycznym. Apartamenty nad rzeką należą do najbardziej poszukiwanych i najlepiej wycenianych nieruchomości. To propozycja dla osób, które poszukują czegoś więcej niż nieruchomości – miejsca o unikalnym charakterze i wartości, której nie da się powtórzyć.
Dostępne mieszkania w tej inwestycji
| Nazwa | Rzut | Pokoje | Powierzchnia | Piętro | Cena | Status |