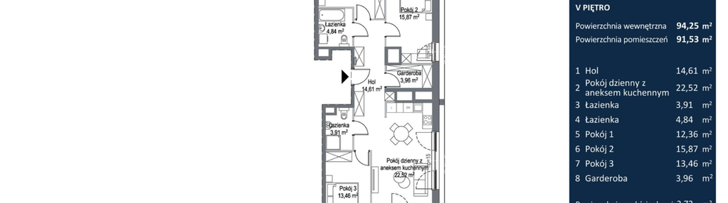
Nowe mieszkanie na sprzedaż 4 pokoje Gdańsk Przymorze Wielkie, 91,53 m2, 5 piętro - nr B.6.01
Oferta sprzedaży od Sea Park Sp. z o. o.
Gdańsk, Przymorze Wielkie, ul. Czarny Dwór (6,8km od centrum Gdańska)

Główne cechy mieszkania
Ważne informacje
Mieszkanie 4 pokojowe
Dodatkowe informacje
Udogodnienia

Plac zabaw

Sala fitness

Patio / Dziedziniec

Winda

Usługi w budynku

Sauna
Przyroda

Park

Morze
Inwestycja
Bulvar Apartments - etap II
pomorskie, Gdańsk, Przymorze Wielkie
W BIEGU ŻYCIA, ZNAJDŹ CHWILĘ DLA SIEBIE W naszej ofercie znajdują się lokale o zróżnicowanej powierzchni. Zaprojektowaliśmy 2- i 3-pokojowe mieszkania oraz przestronne apartamenty dla najbardziej wymagających. Jednak na szczególną uwagę zasługuje penthouse z bezpośrednim dostępem do windy oraz prywatnym tarasem na dachu, z którego 365 dni w roku będzie rozpościerać się zapierający dech w piersiach nadmorski widok. Bulvar to nie tylko komfortowe apartamenty, ale także szereg usług, możliwości i udogodnień, które zapewnią wygodne życie. Mieszkańcy apartamentów będą mogli korzystać z w pełni wyposażonej siłowni, sauny suchej i mokrej oraz strefy rekreacyjnej ze stołem bilardowym, która też świetnie się sprawdzi jako przestrzeń do spotkań towarzyskich.
Dostępne mieszkania w tej inwestycji
| Nazwa | Rzut | Pokoje | Powierzchnia | Piętro | Cena | Status |