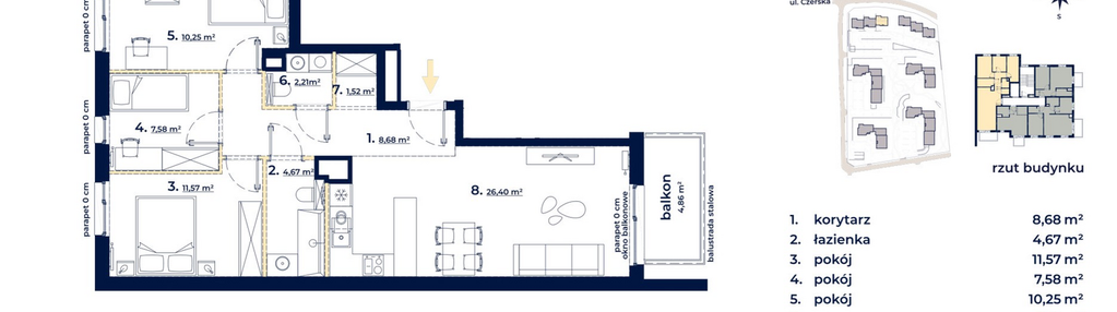
Nowe mieszkanie na sprzedaż 4 pokoje Gdańsk Orunia Górna - Gdańsk Południe, 72,88 m2, 3 piętro - nr A314
Oferta sprzedaży od PRONEKO Sp. z o.o.
Gdańsk, Orunia Górna - Gdańsk Południe, ul. Oskara Żawrockiego 17 (6,2km od centrum Gdańska)

Główne cechy mieszkania
Ważne informacje
Mieszkanie 4 pokojowe
Dodatkowe informacje
Udogodnienia

Rowerownia

Plac zabaw

Wózkarnia

Winda
Przyroda

Las

Park
Inwestycja
Osiedle Kompas
pomorskie, Gdańsk, Orunia Górna - Gdańsk Południe
Osiedle Kompas jest niczym morskie opowieści, które prowadzą Cię do miejsca, gdzie znajdujesz swoje wymarzone mieszkanie. Nadmorski klimat inwestycji znajduje odzwierciedlenie w eleganckich elementach wykończenia i starannie dobranych materiałach, które przywodzą na myśl delikatne brzmienie fal i świeżość nadmorskiej bryzy. Historia i podróże przenikają każdy element inwestycji, tworząc harmonijną całość. W Osiedlu Kompas nadmorski urok zamienia się w codzienne życie, oferując mieszkańcom prawdziwą oazę spokoju i funkcjonalnych udogodnień. Osiedle Kompas – Twój niepowtarzalny azyl w Gdańsku. Inwestycja znajduje się w rejonie ul. Czerskiej 35. Wysoka Jakość, Nowoczesny Design, Wyjątkowa Przestrzeń Nasze klatki schodowe, przestronne i starannie wykończone, wprowadzą Cię w atmosferę spokoju i komfortu, który czeka na Ciebie w Twoim domu. Zadbaliśmy o każdy detal. Nasze osiedle to pogodna podróż przez życie, jego subtelne akcenty prowadzą Cię jak kompas do Twoich własnych, komfortowych czterech kątów.
Dostępne mieszkania w tej inwestycji
| Nazwa | Rzut | Pokoje | Powierzchnia | Piętro | Cena | Status |