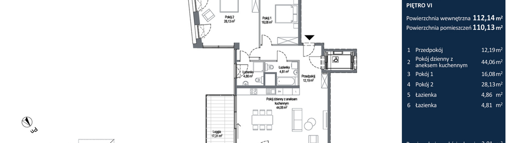
Nowe mieszkanie na sprzedaż 3 pokoje Gdańsk Przymorze Wielkie, 111,50 m2, 6 piętro - nr A.7.14
Oferta sprzedaży od Sea Park Sp. z o. o.
Gdańsk, Przymorze Wielkie, ul. Czarny Dwór (6,8km od centrum Gdańska)

Główne cechy mieszkania
Ważne informacje
Mieszkanie 3 pokojowe
Dodatkowe informacje
Udogodnienia

Patio / Dziedziniec

Sala fitness

Winda

Plac zabaw

Usługi w budynku

Sauna
Przyroda

Park

Morze
Inwestycja
Bulvar Apartments - etap I
pomorskie, Gdańsk, Przymorze Wielkie
W BIEGU ŻYCIA, ZNAJDŹ CHWILĘ DLA SIEBIE W naszej ofercie znajdują się lokale o zróżnicowanej powierzchni. Zaprojektowaliśmy 2- i 3-pokojowe mieszkania oraz przestronne apartamenty dla najbardziej wymagających. Jednak na szczególną uwagę zasługuje penthouse z bezpośrednim dostępem do windy oraz prywatnym tarasem na dachu, z którego 365 dni w roku będzie rozpościerać się zapierający dech w piersiach nadmorski widok. Bulvar to nie tylko komfortowe apartamenty, ale także szereg usług, możliwości i udogodnień, które zapewnią wygodne życie. Mieszkańcy apartamentów będą mogli korzystać z w pełni wyposażonej siłowni, sauny suchej i mokrej oraz strefy rekreacyjnej ze stołem bilardowym, która też świetnie się sprawdzi jako przestrzeń do spotkań towarzyskich.
Dostępne mieszkania w tej inwestycji
| Nazwa | Rzut | Pokoje | Powierzchnia | Piętro | Cena | Status |