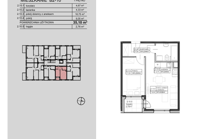
Nowe mieszkanie na sprzedaż 2 pokoje Gdańsk Osowa, 35,10 m2, 1 piętro - nr B2-10
Oferta sprzedaży od ATAL S.A.
Gdańsk, Osowa, ul. Galaktyczna (13,1km od centrum Gdańska)

Główne cechy mieszkania
Ważne informacje
Mieszkanie 2 pokojowe
Dodatkowe informacje
Udogodnienia

Plac zabaw
Inwestycja
Galaktyczna
pomorskie, Gdańsk, Osowa
Inwestycja Galaktyczna powstanie w północno-zachodniej części Gdańska, w dzielnicy Osowa. Jest to doskonała okolica dla osób ceniących bliskość terenów zielonych i rekreacyjnych. Łatwy dojazd do centrum miasta zapewni Obwodnica Trójmiasta. W ofercie Galaktycznej znajdą się 144 mieszkania o układach od 2 do 4 pokoi. Wszystkie lokale posiadać będą balkon lub loggię, a te znajdujące się na parterze – przestronne ogródki. Sześć budynków wchodzących w skład inwestycji będzie miało zaledwie cztery kondygnacje. To niezwykle kameralne osiedle doskonale wpisze się w okoliczną, niską zabudowę. Poza przestronnymi i funkcjonalnymi mieszkaniami, na terenie inwestycji znajdą się starannie zaprojektowane przestrzenie do wypoczynku na świeżym powietrzu. Powstaną pięknie zaaranżowane zielone tereny, pełne krzewów i kwietników. Na placu zabaw dzieci będą mogły oddać się wielogodzinnej zabawie, a dorośli odpoczywać na ławeczkach. Dla zmotoryzowanych przewidziano miejsca postojowe zlokalizowane w hali garażowej oraz na parkingu naziemnym. Rowerzyści będą mogli skorzystać z dedykowanych rowerowni. Mimo, iż okolica jest bezpieczna, teren osiedla zostanie objęty monitoringiem, a wjazd ograniczony szlabanem. Dzięki temu, mieszkańcy będą mieć pewność, że nikt niepożądany nie wejdzie na teren inwestycji. Projekt i wykończenie mieszkania zajmuje sporo czasu oraz pieniędzy. Korzystnym rozwiązaniem jest przekazanie tego zadania naszym Specjalistom. Ich zadaniem jest zaprojektowanie oraz wykończenie mieszkania w sposób nowoczesny i funkcjonalny.
Dostępne mieszkania w tej inwestycji
| Nazwa | Rzut | Pokoje | Powierzchnia | Piętro | Cena | Status |