Nowe mieszkanie na sprzedaż 1 pokój Gdańsk Śródmieście, 26,10 m2, 2 piętro - nr A.218
Oferta sprzedaży od Euro Styl S.A.
Gdańsk, Śródmieście, ul. Kamienna Grobla (1,3km od centrum Gdańska)

Główne cechy mieszkania
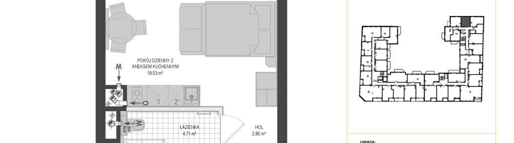
Opis nieruchomości o powierzchni 26,10 m2
Mieszkanie w inwestycji: Esencja - Apartamenty inwestycyjne
Mieszkanie z harmonogramem odroczonych płatności 20/80
Ważne informacje
Mieszkanie 1 pokojowe
Dodatkowe informacje
Udogodnienia

Klimatyzacja

Rowerownia

Usługi w budynku

Winda
Inwestycja
Esencja - Apartamenty inwestycyjne
pomorskie, Gdańsk, Śródmieście
Esencja to nowa inwestycja w historycznej części śródmieścia Gdańska, tuż przy Motławie. Nowy budynek mieszkalno-usługowy uzupełni istniejącą historycznie pierzejową zabudowę. Powstaje pod nadzorem konserwatora zabytków i stanowi część projektu Partnerstwa Publiczno-Prywatnego (PPP), którego celem jest rewitalizacja dzielnicy. Właściciele apartamentów inwestycyjnych i ich goście mogą liczyć na wiele udogodnień wynikających ze znakomitej lokalizacji. Pod ręką jest wszystko, co niezbędne do wygodnego życia – sklepy, usługi, szkoły i przedszkola oraz przychodnia i apteka. W spacerowej odległości znajduje się Główne Miasto z atrakcjami turystycznymi, kawiarniami i restauracjami oraz wypełnione naturalną roślinnością, idealne na spacer lub trening, tereny dawnych bastionów nad Opływem Motławy. Na parterze budynku znajdą się lokale usługowo-handlowe, w których mogą powstać małe sklepy, piekarnia, gabinet kosmetyczny, restauracja lub kawiarnia. Wewnętrzny dziedziniec kamienicy, wypełniony roślinnością, będzie idealnym miejscem relaksu zarówno dla mieszkańców, jak i gości korzystających z oferty lokali usługowych. Komfort codziennego życia i bezpieczeństwo podniosą też rozwiązania smart building. APARTAMENTY INWESTYCYJNE Apartamenty inwestycyjne w części komercyjnej projektu Esencja to 38 funkcjonalnych lokali znajdujących się w wydzielonej i wykończonej w najwyższym standardzie części budynku z osobnym wejściem. Opracowano dwa style wykończenia do wyboru: Retro i Modern, ale istnieje też możliwość skorzystania z innych programów wykończeniowych dewelopera, uniwersalnych dla wszystkich inwestycji. Inwestor kupuje wykończony apartament, który wystarczy doposażyć w meble ruchome i przedmioty codziennego użytku. Inwestycja pozwala łączyć funkcję second home, czyli korzystania z apartamentu przez właścicieli na własne potrzeby, z możliwością zarabiania na wynajmie. Duże okna zapewnią optymalne doświetlenie, z okien części apartamentów mieszkańcy będą mogli cieszyć się widokiem na wodę. ARCHITEKTURA I WNĘTRZA Budynek Esencji nawiązuje formą do przedwojennej, wielkomiejskiej kamienicy. Odcienie elewacji będą odpowiadały historycznemu podziałowi kamienic, a dodatkowej elegancji nadadzą jej gzymsy i ornamenty wokół okien, grafitowa stolarka okienna oraz elementy balustrad i bram. We wnętrzach zaprojektowano tapety i sztukaterie w naturalnych kolorach, drzwi o ciepłej kolorystyce drewna. Na posadzkach znajdą się płytki nawiązujące do kwiatowych wzorów.
Dostępne mieszkania w tej inwestycji
| Nazwa | Rzut | Pokoje | Powierzchnia | Piętro | Cena | Status |