Nowe mieszkanie na sprzedaż 4 pokoje Gdańsk Jasień, 80,30 m2, 4 piętro - nr 8.A.20
Oferta sprzedaży od DOMESTA Sp. z o.o.
Gdańsk, Jasień, ul. Konrada Guderskiego (6,7km od centrum Gdańska)

Główne cechy mieszkania
Opis nieruchomości o powierzchni 80,30 m2
Mieszkanie w inwestycji: Urzeka bud. 8
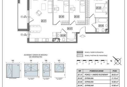
Mieszkanie 8.A.20 to komfortowe 4 pokoje o powierzchni 80,30 m² z przestronnym balkonem o powierzchni 15,84 m² . Położenie na IV piętrze , szerokie przeszklenia w salonie z widokiem na las oraz dobrze rozplanowany układ sprawiają, że część dzienna jest jasna, przestrzenna i daje swobodę aranżacji.
Salon z aneksem kuchennym ma 28,02 m² i jest najmocniejszym punktem tego mieszkania. To przestrzeń, w której można wygodnie połączyć komfortową strefę wypoczynkową, stół oraz kuchnię z pełną zabudową. Aneks w kształcie litery L daje sporo miejsca na blaty robocze, AGD i przechowywanie, a przy wejściu do tej części mieszkania dobrze odnajdzie się stół albo wyspa kuchenna — w zależności od stylu życia domowników. Szerokie przeszklenia dobrze doświetlają salon, a narożny balkon 15,84 m² daje szerokie możliwości aranżacji. Można ustawić tu stolik, wygodne siedziska, większe donice i stworzyć zieloną przestrzeń do odpoczynku, która będzie naturalnym dopełnieniem wnętrza. Widok na drzewa dodatkowo wzmacnia poczucie przestrzeni i nadaje tej części mieszkania bardziej naturalny charakter.
W mieszkaniu są trzy sypialnie: 11,16 m² , 10,90 m² i 10,90 m² . To pokoje ustawne i dające więcej niż jeden sposób urządzenia — zmieszczą łóżko, biurko, szafę albo zabudowę, a przy tym zostawią wygodne miejsce do codziennego korzystania. Atutem tej części mieszkania jest poranne światło i widok na drzewa przy jarze Potoku Oruńskiego, który wnosi do sypialni więcej spokoju. Mocną stroną tego układu są też sprytnie rozplanowane miejsca do przechowywania . Przedpokój 12,86 m² daje przestrzeń na zabudowę ubraniową i gospodarcze schowki, dzięki czemu codzienne wyposażenie można schować poza salonem i pokojami. Układ uzupełniają łazienka 4,42 m² , którą można urządzić jako przyjemny, domowy salonik kąpielowy , oraz osobne WC 2,04 m² .
Rozkład:
- pokój + aneks kuchenny – 28,02 m²
- sypialnia – 11,16 m²
- sypialnia 2 – 10,90 m²
- sypialnia 3 – 10,90 m²
- łazienka – 4,42 m²
- WC – 2,04 m²
- przedpokój z wnęką – 12,86 m²
- balkon – 15,84 m²
O inwestycji
Urzeka to osiedle powstające w Gdańsku Jasieniu, przy rondzie 77 Pułku AK. To miejsce zaprojektowane z myślą o wygodnym życiu na co dzień — z dostępem do zieleni, rekreacji i infrastruktury, która naprawdę przydaje się blisko domu. Dużym atutem inwestycji jest sąsiedztwo Jaru Potoku Oruńskiego z leśnym molem. To przestrzeń, z której można korzystać po prostu na co dzień: na spacer, chwilę ruchu albo odpoczynek po pracy. Osiedle ma dogodny dostęp do Obwodnicy Trójmiasta, a przystanek autobusowy znajduje się około 300 m od inwestycji. Część usług działa już na terenie osiedla, a około 300 m dalej znajduje się centrum handlowe z dyskontem, supermarketem drogeryjnym, księgarnią, przedszkolem i żłobkiem. W odległości do 1 km dostępne są także supermarkety, sklepy odzieżowe i restauracje. Sama inwestycja ma nowoczesną, 4-piętrową zabudowę i została zaplanowana tak, by łączyć estetykę z funkcjonalnością. Mieszkańcy mają do dyspozycji balkony lub ogródki, cichobieżne windy, podziemne hale garażowe, komórki lokatorskie, plac zabaw, boisko wielofunkcyjne i tereny zielone. Urzeka została doceniona również za zagospodarowanie przestrzeni i architekturę krajobrazu, co dobrze pokazuje, że ważne jest tu nie tylko samo mieszkanie, ale też całe otoczenie. To osiedle dla osób, które chcą mieszkać wygodnie, nowocześnie i bliżej dobrze zaprojektowanej zieleni.
Podwyższony standard
Podwyższony standard deweloperski w Domesta obejmuje:
– ściany i sufity szpachlowane i malowane dwukrotnie na biało
– trzyszybowe okna
– parapety z konglomeratu
– ściany działowe z bloczków gipsowych
– solidne drzwi o klasie antywłamaniowej
– wysokiej jakości gniazda i włączniki
Odbiór
Planowany termin odbioru budynku 8: październik 2027 roku . Domesta od lat realizuje inwestycje zgodnie z harmonogramem, a wszystkie dotychczasowe etapy oddawała klientom terminowo.
Mieszkania z widokiem na las, dużym balkonem i tak dobrze doświetloną częścią dzienną nie trafiają się często. Jeśli szukasz miejsca, które łączy swobodę aranżacji z codziennym kontaktem z zielenią, warto poznać Urzekę bliżej. Wyślij zapytanie — pomożemy wybrać lokal dopasowany do Twoich potrzeb.
Ważne informacje
Mieszkanie 4 pokojowe
Dodatkowe informacje
Udogodnienia

Plac zabaw

Boisko

Winda
Inwestycja
Urzeka bud. 8
pomorskie, Gdańsk, Jasień
Inwestycja Urzeka to wyjątkowe połączenie życia blisko natury z wygodą miejskiej infrastruktury. Zielone otoczenie osiedla zapewnia mieszkańcom ciszę, spokój oraz idealne warunki do relaksu i spędzania wolnego czasu na świeżym powietrzu. Docelowo w ramach inwestycji powstanie 15 budynków mieszkalnych. Już w pierwszym etapie, który został częściowo oddany do użytku, zrealizowano sklepy i punkty usługowe, znacząco podnoszące komfort codziennego życia. Wszystkie budynki wyposażone są w cichobieżne windy, hale garażowe i komórki lokatorskie w części podziemnej oraz naziemne miejsca parkingowe. Na terenie osiedla powstają liczne place zabaw, boisko wielofunkcyjne do gier zespołowych, a także wyjątkowa strefa rekreacyjna nad potokiem – idealna przestrzeń do odpoczynku i integracji mieszkańców. Mariaż elegancji z naturą Architektura budynków odznacza się prostą formą i rytmicznymi podziałami elewacji, nawiązuje do modernizmu. Elegancki charakter podkreślają narożniki kwartałów, których szczyty wykończone zostały ceglaną okładziną. Oprócz bieli, tynku i cegły, integralnym elementem kompozycji jest roślinność, która występuje w postaci zielonych dachów oraz pnączy na elewacjach. Podwyższony standard wykończenia Nasze mieszkania wyróżniają się podwyższonym standardem wykończenia. Ściany i sufity zostały starannie wygładzone oraz pomalowane dwukrotnie na biało, co nie tylko pozwala zaoszczędzić czas na wykańczanie wnętrz, ale również zapewnia estetyczny wygląd i idealne tło do aranżacji. Ściany wykonano z bloczków gipsowych, które gwarantują dobrą izolację akustyczną. Zastosowanie nowoczesnych, trzyszybowych okien zapewnia doskonałe właściwości termiczne, redukcję hałasu z zewnątrz oraz mniejsze straty ciepła. W standardzie mieszkań znajdują się już eleganckie parapety oraz starannie dobrane, wysokiej jakości gniazda i włączniki. Bezpieczeństwo mieszkańców zapewniają solidne drzwi wejściowe o podwyższonej klasie antywłamaniowej. Place zabaw i boisko na osiedlu Najmłodsi mieszkańcy inwestycji będą mogli spędzać czas na funkcjonalnym placu zabaw ze zjeżdżalnią oraz przy naturalnej strefie rekreacyjnej od strony lasu i doliny Potoku Oruńskiego. Niezapomnianą zabawę zagwarantują m.in. tyrolka, "małpi gaj" oraz możliwość wspinaczki linowej. Dodatkowo mieszkańcy będą mogli korzystać z wielofunkcyjnego boiska sportowego zlokalizowanego na terenie osiedla. Blisko miasta i natury Inwestycja Urzeka zlokalizowana jest w dzielnicy Gdańsk Jasień, przy rondzie im. 77 Pułku AK w Gdańsku, u zbiegu ulic Guderskiego i Czermińskiego. Inwestycja otoczona jest lasem oraz doliną Potoku Oruńskiego. W pobliżu osiedla znajdują się zbiorniki retencyjne Świętokrzyska I oraz Świętokrzyska II oraz ścieżki rowerowe. W okolicy zlokalizowane są liczne punkty handlowo-usługowe i gastronomiczne, a także placówki edukacyjne i medyczne. Nie brakuje też terenów rekreacyjnych, zarówno w bezpośrednim sąsiedztwie jak i w pobliżu osiedla. Dzięki bliskości głównych arterii, obwodnicy Trójmiasta oraz rozbudowanej infrastruktury transportu zbiorowego, Urzeka jest świetnie skomunikowana z centrum Gdańska oraz innymi dzielnicami miasta. Obok inwestycji planowana jest budowa ulicy Nowa Turzycowa, która umożliwi mieszkańcom inwestycji szybszy dojazd do ulicy Jabłoniowej i wielu ważnych punktów miasta. Mieszkania dostosowane do potrzeb W ofercie inwestycji znajdują się lokale o zróżnicowanych metrażach od 35 do ponad 80 m kw. Ich integralną całość stanowią ogródki oraz balkony. Trzypokojowe mieszkania zostały wzbogacone o dodatkowe pomieszczenie - garderobę. Dzięki różnorodności układów funkcjonalnych, każdy z przyszłych mieszkańców osiedla znajdzie mieszkanie dopasowane idealnie do jego potrzeb. Przytulnie i komfortowo Przemyślane układy funkcjonalne mieszkań pozwolą spełnić marzenia o przytulnym i komfortowym lokum. Wnętrza przestrzeni wspólnych zostały utrzymane w modernistycznym charakterze i ocieplone okładzinami drewnianymi. Dopełnienie wystroju stanowić będą czarnobiałe zdjęcia przyrody znajdującej się na terenie osiedla.
Dostępne mieszkania w tej inwestycji
| Nazwa | Rzut | Pokoje | Powierzchnia | Piętro | Cena | Status |