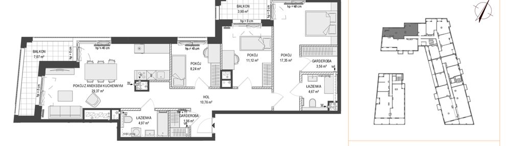
Nowe mieszkanie na sprzedaż 4 pokoje Gdańsk Śródmieście, 92 m2, 4 piętro - nr B1.39
Oferta sprzedaży od Euro Styl S.A.
Gdańsk, Śródmieście, ul. Reduta Wyskok (1,5km od centrum Gdańska)

Główne cechy mieszkania
Ważne informacje
Mieszkanie 4 pokojowe
Dodatkowe informacje
Udogodnienia

Usługi w budynku

Plac zabaw

Winda

Inteligentny dom
Inwestycja
Zajezdnia Motława
pomorskie, Gdańsk, Śródmieście
Zajezdnia Motława, z komfortowymi mieszkaniami i lokalami usługowymi, jest elementem projektu Partnerstwa Publiczno-Prywatnego, którego cel to rewitalizacja Dolnego Miasta w Gdańsku. Stanowi idealne miejsce, by cieszyć się życiem w miejskim stylu, a jednocześnie być blisko terenów zielonych i wody. Częścią projektu będzie zabytkowa hala dawnej zajezdni tramwajowej. W ofercie znajdują się komfortowe mieszkania o różnych metrażach - z części z nich rozpościera się wspaniały widok na Opływ Motławy.
Dostępne mieszkania w tej inwestycji
| Nazwa | Rzut | Pokoje | Powierzchnia | Piętro | Cena | Status |