Nowe mieszkanie na sprzedaż 3 pokoje Gdańsk Orunia Górna - Gdańsk Południe, 67,47 m2, 2 piętro - nr 9.A.12
Oferta sprzedaży od DOMESTA Sp. z o.o.
Gdańsk, Orunia Górna - Gdańsk Południe, ul. Starogardzka (6,4km od centrum Gdańska)

Główne cechy mieszkania
Opis nieruchomości o powierzchni 67,47 m2
Mieszkanie w inwestycji: Nowe Południe bud. 9
Mieszkanie 9. A.
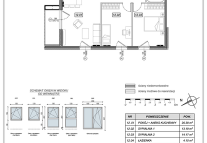
12 to mieszkanie 3-pokojowe z osobną łazienką i toaletą. Duże sypialnie.
Dobrze sprawdzi się dla rodziny. Rozkład pomieszczeń: - Pokój dzienny z aneksem kuchennym: 26.
38 m² - Sypialnia 1: 13. 19 m² - Sypialnia 2: 14.
17 m² - Łazienka : 4. 10 m² - Toaleta: 1.
90 m² - Komunikacja: 7. 74 m² - Loggia : 4.
95 m².
Nowe Południe to nowoczesne osiedle mieszkaniowe w Gdańsku Południe, zaprojektowane z myślą o codziennym komforcie. Budynki mają od czterech do sześciu pięter, a ich układ oraz otoczenie zaplanowano tak, by zapewnić przestrzeń, światło i wygodę mieszkańcom.
Na terenie osiedla powstają alejki, pagórki, ponad 500 nowo posadzonych drzew, kreatywny plac zabaw oraz strefy wypoczynku – wszystko to tworzy przyjazne, zielone środowisko do życia. Garaże i ruch samochodowy zostały oddzielone od stref pieszych, co zwiększa bezpieczeństwo i komfort.
Doskonała lokalizacja w sąsiedztwie obwodnicy, licznych punktów usługowych, przedszkoli i komunikacji miejskiej sprawia, że wszystko jest tu pod ręką – bez rezygnacji ze spokoju.
Projekt zdobył uznanie zarówno wśród mieszkańców, jak i ekspertów – osiedle zostało nagrodzone tytułem Inwestycji Roku w plebiscycie oraz zwyciężyło w Wizjerach 2024 jako najlepsza inwestycja z udogodnieniami dla mieszkańców.
Podwyższony standard deweloperski w Domesta obejmuje:
– ściany i sufity szpachlowane i malowane dwukrotnie na biało
– trzyszybowe okna
– parapety z konglomeratu
– ściany działowe z bloczków gipsowych
– solidne drzwi o klasie antywłamaniowej
– wysokiej jakości gniazda i włączniki
Zamieszkaj bez stresu – planowany termin odbioru to listopad 2026 . Domesta dotrzymuje słowa – 100% inwestycji zostało oddanych w terminie.
Chcesz dowiedzieć się więcej lub obejrzeć lokal? Skontaktuj się z naszym biurem sprzedaży – chętnie odpowiemy na wszystkie pytania.
Link do oferty dewelopera:
Ważne informacje
Mieszkanie 3 pokojowe
Dodatkowe informacje
Udogodnienia

Patio / Dziedziniec

Winda

Rowerownia

Plac zabaw
Inwestycja
Nowe Południe bud. 9
pomorskie, Gdańsk, Orunia Górna - Gdańsk Południe
Nowe Południe to nowoczesne osiedle powstające przy ulicy Starogardzkiej w prężnie rozwijającej się dzielnicy Gdańsk Południe. Jego położenie gwarantuje szybki dostęp do centrum Gdańska oraz obwodnicy Trójmiasta, najważniejszej ekspresowej drogi tego regionu. To miejsce, w którym wszystko co niezbędne znajdziesz w zasięgu przyjemnego spaceru: zarówno wyjątkową zieloną przestrzeń jak i dostęp do usług. Przy inwestycji znajdują się drogi rowerowe, które umożliwią Twojemu dziecku w bezpieczny sposób dotrzeć do szkoły, a Tobie znaleźć wytchnienie od wielkomiejskiego zgiełku. Architektura budynków, odznaczająca się prostą formą, rytmicznymi podziałami elewacji oraz narożnymi loggiami, nawiązuje do modernizmu. Budynki zostały podzielone na szare i białe bryły, a detalem spajającym wszystkie elementy jest okładzina ceglana. Na osiedlu Nowe Południe przestrzeń i natura idą w parze z doskonałą architekturą. Skrupulatnie zaprojektowana przestrzeń naturalnych terenów rekreacyjnych tworzy idealną strefę odpoczynku i zabaw pośród bogactwa roślin, krzewów i drzew. Wyłączenie ruchu samochodowego ze strefy mieszkalnej pozwoliło stworzyć miejsce bezpieczne oraz pozbawione spalin i uciążliwego hałasu. Umieszczenie miejsc postojowych w garażach podziemnych wpłynęło na powiększenie powierzchni osiedlowych dziedzińców. Wypełnienie ich różnorodną zielenią przyczyni się do stworzenia estetycznej przestrzeni sprzyjającej dobremu samopoczuciu. Na terenie Nowego Południa znajdzie się ponad 500 drzew, a projekt osiedla zakłada ścisłą integrację z naturą. Dobór roślin podyktowany był uwydatnieniem różnorodności poszczególnych przestrzeni dziedzińców, podkreśleniem piękna przyrody i wykreowaniem harmonijnej całości. Alejki, pagórki oraz sposób formowania nasadzeń nawiązuje do naturalnego położenia terenu. Nowe Południe to enklawa zieleni mająca znaczenie zarówno dla naszego komfortu jak i zdrowia. Z myślą o najmłodszych stworzyliśmy wyjątkowy plac zabaw z oryginalną zabawką wodną. Inspiruje ona do eksperymentowania i zabawy z naturalnymi materiałami. W pobliżu znajdzie się również kopuła wspinaczkowa. Dzieci o różnych umiejętnościach będą mogły "zdobywać szczyty", każde na swój sposób. Możliwość huśtania się, wspinaczki po sieci i skakania po linach pozytywnie wpłynie na rozwój motoryki, równowagi i koordynacji ruchowej. Na terenie osiedla zaprojektowano też przestrzeń do zabawy zawierającą najbardziej popularne i lubiane elementy placu zabaw. Wszystko po to, by czas spędzony z przyjaciółmi na świeżym powietrzu był jak najpiękniejszy.
Dostępne mieszkania w tej inwestycji
| Nazwa | Rzut | Pokoje | Powierzchnia | Piętro | Cena | Status |