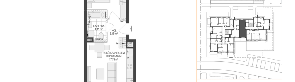
Nowe mieszkanie na sprzedaż 2 pokoje Gdańsk Ujeścisko-Łostowice, 36,48 m2, parter - nr B.3
Oferta sprzedaży od Euro Styl S.A.
Gdańsk, Ujeścisko-Łostowice, ul. Warszawska (4,7km od centrum Gdańska)

Główne cechy mieszkania
Ważne informacje
Mieszkanie 2 pokojowe
Dodatkowe informacje
Udogodnienia

Klimatyzacja

Winda

Plac zabaw

Rowerownia

Usługi w budynku
Przyroda

Park
Inwestycja
Osiedle Warszawska etap III
pomorskie, Gdańsk, Ujeścisko-Łostowice
TO WŁAŚNIE WARSZAWSKA Osiedle Warszawska to całkowicie nowa inwestycja Euro Stylu na gdańskim Ujeścisku, którą docelowo utworzy sześć budynków (VI-VII kondygnacji). Dzięki znakomitej lokalizacji i rozwiniętej infrastrukturze miejskiej w pełni wpisuje się w ideę 15-minutowego miasta. W ramach III etapu powstanie w sumie 54 funkcjonalnych (25-66 m kw.) DOSKONALE SKOMUNIKOWANE Bezpośrednie sąsiedztwo przystanku tramwajowego i autobusowego oraz bliskość węzła przesiadkowego Ujeścisko powoduje, że Osiedle Warszawska jest doskonale skomunikowane z innymi częściami miasta. Tramwajem do centrum Gdańska można wygodnie dojechać w 20 minut. Mieszkańcy mogą korzystać z rozwiniętej infrastruktury miejskiej. W pobliżu znajdują się m.in. sklepy, szkoły i przedszkola, a także restauracje i tereny rekreacyjne. ATRAKCJE NA OSIEDLU Funkcjonalnie zaprojektowane części wspólne będą zachęcać do spędzania czasu na świeżym powietrzu. Na osiedlu znajdzie się komfortowa strefa rekreacji z ławkami i leżakami oraz dobrze wyposażony, bezpieczny plac zabaw dla dzieci. Przy jednym z budynków, dla wygody mieszkańców, stanie przesyłkomat, a dwie dodatkowe hale garażowe pod miejscami naziemnymi ograniczą liczbę samochodów parkujących na zewnątrz. EKOLOGIA Na osiedlu zaplanowano szeroki wachlarz ekologicznych rozwiązań, w tym zielone dachy, ogrody deszczowe oraz energooszczędne oświetlenie LED. Mieszkańcy będą mogli korzystać z rozwiniętej infrastruktury rowerowej - rowerowni, zadaszonych wiat i stacji naprawy rowerów. Wybrane stanowiska w halach wyposażone będą w gniazda do ładowania aut elektrycznych. Zaprojektowano też zewnętrzną stację do ładowania „elektryków”. ARCHITEKTURA I WNĘTRZA Wszystkie budynki będą miały jasne elewacje, wzbogacone o cieniowane pola w ciepłych kolorach. Z kolei ciemniejsze elewacje parterów dadzą wizualny efekt „odcięcia” i lekkości bryły, a duże przeszklenia zapewnią dobre doświetlenie wnętrz. W strefach wejściowych budynków zastosowane zostaną materiały z fakturą drewna i pionowymi ryflowaniami, klatki schodowe będą zaś zdobić stylowe lustra. FUNKCJONALNE MIESZKANIA Zaprojektowane w dobrym stylu mieszkania o różnych metrażach spełnią oczekiwania nawet najbardziej wymagających mieszkańców. Funkcjonalne układy lokali pozwolą efektywnie wykorzystać każdy metr powierzchni, niezależnie od tego, czy jest to duże czy mniejsze mieszkanie. Mieszkańcy mogą odłożyć na chwilę codzienne obowiązki, by odpocząć na balkonie lub loggii. Wszystkie mieszkania na parterze mają natomiast ogródki, które stanowią dodatkową przestrzeń do wypoczynku.
Dostępne mieszkania w tej inwestycji
| Nazwa | Rzut | Pokoje | Powierzchnia | Piętro | Cena | Status |