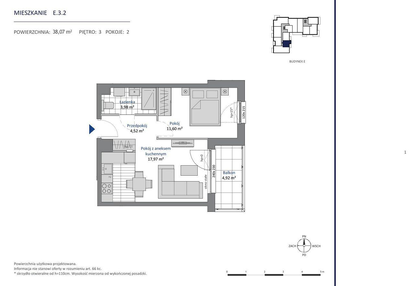
Nowe mieszkanie na sprzedaż 2 pokoje Gdynia Dąbrowa, 38,07 m2, 3 piętro - nr E.3.2
Oferta sprzedaży od Platforma Mieszkaniowa
Gdynia, Dąbrowa, ul. Rdestowa (8,4km od centrum Gdyni)


Główne cechy mieszkania
Ważne informacje
Mieszkanie 2 pokojowe
Inwestycja

Nowa Dąbrowa bud. DE
pomorskie, Gdynia, Dąbrowa
Elementy dodatkowe oferty- zakup obowiązkowy (udział w Terenie Osiedlowym 6.396 zł brutto, Udział w Terenie Rekreacyjnym 3.444 zł brutto)
Dostępne mieszkania w tej inwestycji
Nazwa | Rzut | Pokoje | Powierzchnia | Piętro | Cena | Status |