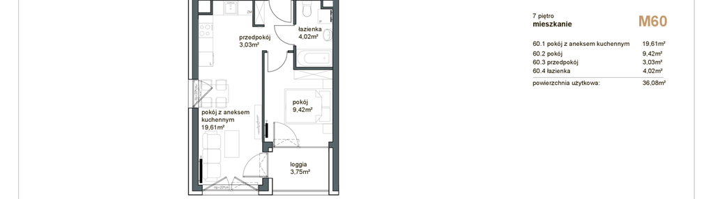
Nowe mieszkanie na sprzedaż 2 pokoje Gdynia Chylonia, 36,08 m2, 7 piętro - nr 60
Oferta sprzedaży od Eurobud Chajewscy Sp.j.
Gdynia, Chylonia, ul. Wiejska 10

Główne cechy mieszkania
Ważne informacje
Mieszkanie 2 pokojowe
Dodatkowe informacje
Udogodnienia

Plac zabaw

Rowerownia

Winda

Usługi w budynku
Przyroda

Park

Las
Inwestycja
Dostępne mieszkania w tej inwestycji
| Nazwa | Rzut | Pokoje | Powierzchnia | Piętro | Cena | Status |