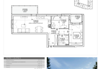
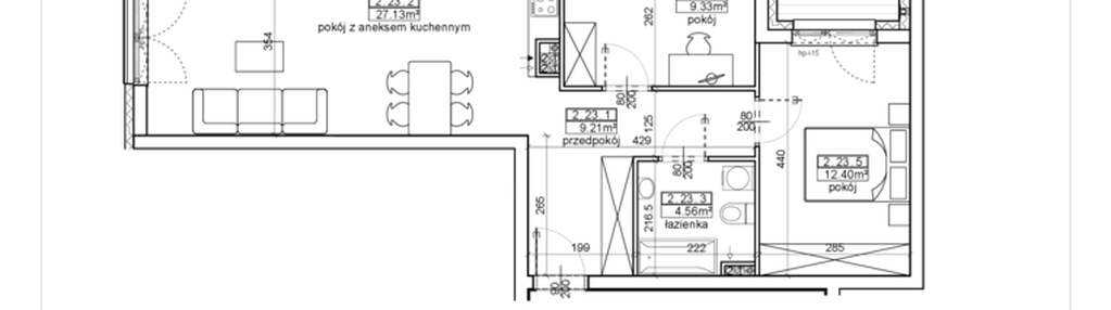
Nowe mieszkanie na sprzedaż 3 pokoje Giżycko, 62,63 m2, 1 piętro - nr 54
Oferta sprzedaży od Rutkowski Development Sp. J.
Giżycko, ul. Armii Krajowej (0,7km od centrum Giżycka)

Główne cechy mieszkania
Ważne informacje
Mieszkanie 3 pokojowe
Dodatkowe informacje
Udogodnienia

Plac zabaw

Patio / Dziedziniec

Winda
Przyroda

Jezioro
Inwestycja
Wave etap II
warmińsko-mazurskie, giżycki, Giżycko
Świta, słyszysz śpiew ptaków i rechot żab, jeszcze kilka kroków i poczujesz wiatr w żaglach i słońce na twarzy. Łódź czeka, widzisz jak spokojnie kołysze się na wodzie, gdy wchodzisz do portu. Odcumowujesz, płyniesz. Odwracasz głowę w stronę lądu. Twój apartament żegna Cię czerwonym uśmiechem róż na tarasie. Poznaj Wave – niech poniesie Cię fala przyjemności z mieszkania na Mazurach. Kaskadowy kształt budynku Wave oparto na kwadracie z otwartym dziedzińcem w środku. Ciekawe architektoniczne rozwiązanie przypominające z profilu falę, nadaje projektowi niepowtarzalnego charakteru, wyróżniającego się na tle okolicznej, miejskiej zabudowy. W ofercie znajduje się szeroki wybór metraży od około 30 m² do 113 m², co stanowi doskonałą propozycję do zamieszkania zarówno dla singli, jak i rodzin z dziećmi, a ze względu na lokalizację do inwestycji. Mieszkania z antresolą zapewniającą dodatkową przestrzeń z pewnością zainteresują wielbicieli dobrego designu. *W OSTATNIĄ SOBOTĘ MIESIĄCA WSZYSTKIE BIURA SPRZEDAŻY SĄ OTWARTE W GODZINACH 9-14. ZAPRASZAMY!*
Dostępne mieszkania w tej inwestycji
| Nazwa | Rzut | Pokoje | Powierzchnia | Piętro | Cena | Status |