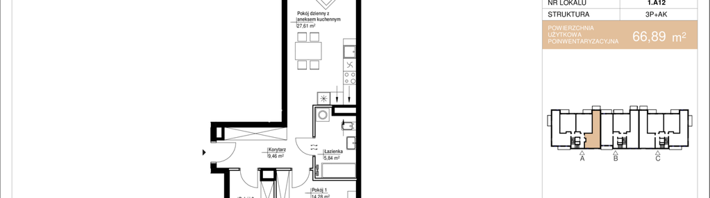
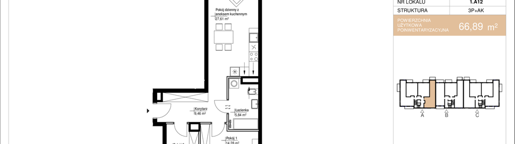
Nowe mieszkanie na sprzedaż 3 pokoje Gniezno, 66,89 m2, 2 piętro - nr 1.A12
Oferta sprzedaży od Jakon Sp. z o.o.
Gniezno, ul. Witolda Gombrowicza 27 (2km od centrum Gniezna)

Główne cechy mieszkania
Ważne informacje
Mieszkanie 3 pokojowe
Dodatkowe informacje
Udogodnienia

Wózkarnia

Rowerownia

Winda
Inwestycja
Gombrowicza 33
wielkopolskie, gnieźnieński, Gniezno
W pierwszym etapie inwestycji Gombrowicza 33 realizujemy budowę 44 lokali mieszkalnych w kameralnym, 3-piętrowym budynku z podziemną halą garażową. W ofercie znajdują się mieszkania 2- i 3-pokojowe o powierzchniach od 38 do niemal 70 m2, a także komórki lokatorskie, miejsca w hali garażowej i miejsca zewnętrzne. Na parterze zaprojektowano lokale mieszkalne z ogródkami, które dają dodatkowe możliwości wykorzystania przestrzeni, a wszystkie mieszkania na piętrze posiadają balkony. Z myślą o przyszłych mieszkańcach na terenie inwestycji przewidziano miejsce do ładowania pojazdów elektrycznych.
Dostępne mieszkania w tej inwestycji
| Nazwa | Rzut | Pokoje | Powierzchnia | Piętro | Cena | Status |