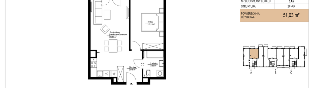
Nowe mieszkanie na sprzedaż 2 pokoje Gniezno, 51,03 m2, 1 piętro - nr 3.A5
Oferta sprzedaży od Jakon Sp. z o.o.
Gniezno, ul. Witolda Gombrowicza 29 (2,1km od centrum Gniezna)

Główne cechy mieszkania
Ważne informacje
Mieszkanie 2 pokojowe
Dodatkowe informacje
Udogodnienia

Winda

Rowerownia

Wózkarnia

Plac zabaw
Inwestycja
Dostępne mieszkania w tej inwestycji
| Nazwa | Rzut | Pokoje | Powierzchnia | Piętro | Cena | Status |