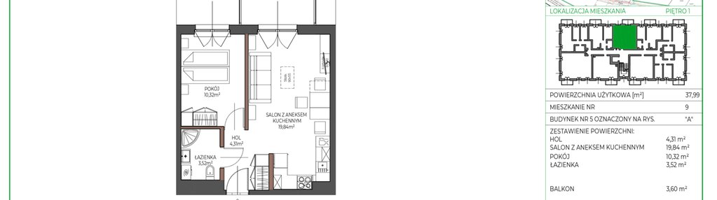
Nowe mieszkanie na sprzedaż 2 pokoje Góra Kalwaria, 38 m2, 1 piętro - nr 9
Oferta sprzedaży od Przedsiębiorstwo Budowlane Eko-Dom
RezerwacjaGóra Kalwaria, ul. Polna

Główne cechy mieszkania
Ważne informacje
Mieszkanie 2 pokojowe
Dodatkowe informacje
Udogodnienia

Patio / Dziedziniec

Rowerownia

Wózkarnia

Winda

Plac zabaw

Własna kotłownia
Inwestycja
Dostępne mieszkania w tej inwestycji
| Nazwa | Rzut | Pokoje | Powierzchnia | Piętro | Cena | Status |