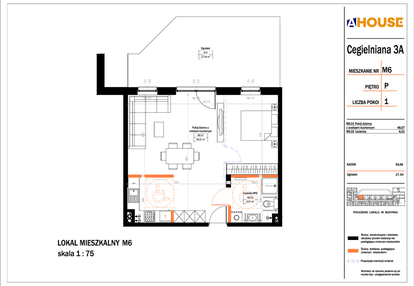
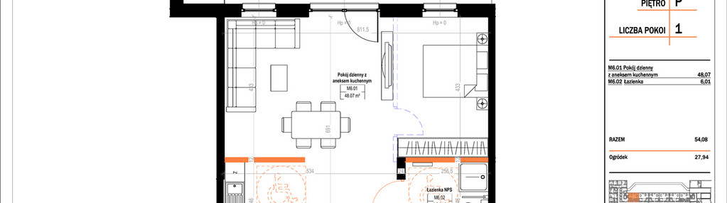
Nowe mieszkanie na sprzedaż 1 pokój Grodzisk Mazowiecki, 54,08 m2, parter - nr 6
Oferta sprzedaży od aHouse
RezerwacjaGrodzisk Mazowiecki, ul. Cegielniana 3

Główne cechy mieszkania
Opis nieruchomości o powierzchni 54,08 m2
Mieszkanie w inwestycji: Osiedle StaLove etap II
StaLove – mieszkania w sercu Grodziska Mazowieckiego
Oferujemy na sprzedaż mieszkania w inwestycji StaLove , zlokalizowanej przy ul. Cegielnianej w centrum Grodziska Mazowieckiego.
Osiedle zostało zaprojektowane z myślą o osobach, które szukają połączenia spokoju, komfortu i wygody życia w mieście,
z dostępem do natury i pełnej infrastruktury.
Atuty osiedla:
Funkcjonalne układy – szeroki wybór metraży od 27 m² do 110 m², dostosowanych do potrzeb singli, par i rodzin.
Przestrzeń na świeżym powietrzu – mieszkania z prywatnymi ogródkami lub dużymi balkonami.
Komfort codzienności – w budynkach dostępne windy, komórki lokatorskie oraz miejsca parkingowe w garażu podziemnym.
Możliwość zakupienia platformy garażowej – parkowanie 2 aut osobowych na jednym miejscu parkingowym.
Bliskość natury – w sąsiedztwie parki, tereny rekreacyjne i ścieżki spacerowe oraz rowerowe.
Pełna wygoda – sklepy, punkty usługowe i centrum handlowe w odległości kilku minut spacerem.
Przestronne wnętrza – wysokie pomieszczenia 2,80–3,30 m dają poczucie przestrzeni i komfortu na co dzień.
Energia z natury – instalacja fotowoltaiczna na dachu obniża koszty prądu części wspólnych i wspiera ekologiczny styl życia.
Standard apartamentowy – cały kompleks osiedla został zaprojektowany i wykonany z myślą o wysokim standardzie.
Przygotowane pod klimatyzację – każde mieszkanie wyposażone w instalację umożliwiającą szybki montaż klimatyzatora.
Szybki internet – światłowód w każdym budynku zapewnia nieprzerwaną i stabilną łączność.
Wysokiej jakości stolarka – gwarantuje trwałość i bezpieczeństwo.
Edukacja w zasięgu ręki – w pobliżu przedszkola, szkoły podstawowe i licea.
Szybki dojazd do Warszawy – kolej WKD i PKP, a także bliskość autostrady A2 i trasy S8.
Bezpieczna inwestycja – zakup bez prowizji i podatku PCC (2%), bezpośrednio od dewelopera.
Lokalizacja:
Osiedle StaLove znajduje się w centralnej części Grodziska Mazowieckiego , miasta z bogatą ofertą kulturalną i sportową.
W okolicy dostępne są m.in. Mediateka, Centrum Kultury, szkoła muzyczna oraz liczne kluby sportowe.
Mieszkańcy mają szybki dostęp do sklepów, restauracji i punktów usługowych,
a jednocześnie mogą korzystać z licznych terenów zielonych – parków, stawów i ścieżek rowerowych.
Komunikacja: StaLove to wygodne połączenia z Warszawą i całym regionem:
Przystanki autobusowe – linii 0, 16, 17, 29, 45
Kolej WKD – ok. 1,5 km od osiedla
Stacja PKP Grodzisk Mazowiecki – szybkie połączenia z centrum Warszawy
Autostrada A2, trasa S8, obwodnica miasta – sprawny dojazd samochodem
Dzięki temu codzienne podróże do pracy, szkoły czy na uczelnię są szybkie, wygodne i przewidywalne.
Przekazanie kluczy:
Etap I – 2Q 2026
Etap II – 4Q 2026
Kontakt:
Biuro sprzedaży aHouse Development
ul. Nadarzyńska 25, Grodzisk Mazowiecki
|
Niniejsze ogłoszenie ma charakter informacyjny i nie stanowi oferty w rozumieniu przepisów Kodeksu cywilnego.
Ważne informacje
Mieszkanie 1 pokojowe
Dodatkowe informacje
Udogodnienia

Usługi w budynku

Winda
Inwestycja
Osiedle StaLove etap II
mazowieckie, grodziski, Grodzisk Mazowiecki
StaLove – mieszkania w sercu Grodziska Mazowieckiego Oferujemy na sprzedaż mieszkania w inwestycji StaLove, zlokalizowanej przy ul. Cegielnianej w centrum Grodziska Mazowieckiego. Osiedle zostało zaprojektowane z myślą o osobach, które szukają połączenia spokoju, komfortu i wygody życia w mieście, z dostępem do natury i pełnej infrastruktury. Atuty osiedla: • Funkcjonalne układy – szeroki wybór metraży od 27 m² do 110 m², dostosowanych do potrzeb singli, par i rodzin. • Przestrzeń na świeżym powietrzu – mieszkania z prywatnymi ogródkami lub dużymi balkonami. • Komfort codzienności – w budynkach dostępne windy, komórki lokatorskie oraz miejsca parkingowe w garażu podziemnym. • Możliwość zakupienia platformy garażowej, która umożliwia parkowanie 2 aut osobowych na jednym miejscu parkingowym. • Bliskość natury – w sąsiedztwie parki, tereny rekreacyjne i ścieżki spacerowe oraz rowerowe. • Pełna wygoda – sklepy, punkty usługowe i centrum handlowe w odległości kilku minut spacerem. • Przestronne wnętrza – wysokie pomieszczenia 2,80-3,30 m dają poczucie przestrzeni i komfortu na co dzień. • Energia z natury – instalacja fotowoltaiczna na dachu obniża koszty prądu części wspólnych i wspiera ekologiczny styl życia. • Standard apartamentowy – cały kompleks Osiedla został zaprojektowany i wykonany z myślą o wysokim standardzie • Przygotowane pod klimatyzację - każde mieszkanie wyposażone w instalację umożliwiającą szybki montaż klimatyzatora. • Szybki internet – światłowód w każdym budynku zapewnia nieprzerwaną i stabilną łączność. • Wysokiej jakości stolarka –gwarantuje trwałość i bezpieczeństwo. • Edukacja w zasięgu ręki – w pobliżu przedszkola, szkoły podstawowe i licea. • Szybki dojazd do Warszawy – kolej WKD i PKP, a także bliskość autostrady A2 i trasy S8. • Bezpieczna inwestycja – zakup bez prowizji i podatku PCC (2%), bezpośrednio od dewelopera. Lokalizacja: Osiedle StaLove znajduje się w centralnej części Grodziska Mazowieckiego, miasta z bogatą ofertą kulturalną i sportową. W okolicy dostępne są m.in. Mediateka, Centrum Kultury, szkoła muzyczna oraz liczne kluby sportowe. Mieszkańcy mają szybki dostęp do sklepów, restauracji i punktów usługowych, a jednocześnie mogą korzystać z licznych terenów zielonych – parków, stawów i ścieżek rowerowych. Komunikacja: StaLove to wygodne połączenia z Warszawą i całym regionem: • Przystanki autobusowe – linii 0,16,17,29,45 • kolej WKD – ok. 1,5 km od osiedla, • stacja PKP Grodzisk Mazowiecki – szybkie połączenia z centrum Warszawy, • autostrada A2, trasa S8, obwodnica miasta – sprawny dojazd samochodem. Dzięki temu codzienne podróże do pracy, szkoły czy na uczelnię są szybkie, wygodne i przewidywalne. Przekazanie kluczy: Etap I – 2 Q 2026 Etap II – 4 Q 2026 ________________________________________ Niniejsze ogłoszenie ma charakter informacyjny i nie stanowi oferty w rozumieniu przepisów Kodeksu cywilnego.
Dostępne mieszkania w tej inwestycji
| Nazwa | Rzut | Pokoje | Powierzchnia | Piętro | Cena | Status |