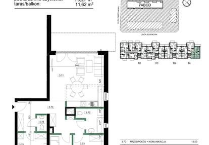
Nowe mieszkanie na sprzedaż 4 pokoje Kobylniki, 79,19 m2, 2 piętro - nr A09/2
Oferta sprzedaży od CREO DEVELOPMENT SPÓŁKA Z OGRANICZONĄ ODPOWIEDZIALNOŚCIĄ
poznański, Kobylniki, ul. Kasztanowa


Główne cechy mieszkania
Ważne informacje
Mieszkanie 4 pokojowe
Dodatkowe informacje
Przyroda

Park

Jezioro

Las
Inwestycja

Orzechowa Osada etap II
wielkopolskie, poznański, Kobylniki
Osiedle Orzechowa Osada w Kobylnikach to przestrzeń zaprojektowana tak, by codzienność była niezwykła. Kameralne osiedle, stanowi doskonałe uzupełnienie okolicy, wśród której dominuje niska zabudowa stwarzając idealne warunki do wypoczynku. Projekt osiedla obejmie kilka, spójnych architektonicznie etapów. Kolejnym etapem rozwoju Osiedla Orzechowa Osada jest budowa trzech budynków wielorodzinnych, 4 kondygnacyjnych. Podobnie jak w pierwszej części osiedla, mieszkania wyposażone będą w przestronne, słoneczne tarasy i balkony. Powierzchnia mieszkań od niespełna 31m2 do ponad 79m2 zapewni wybór swojego lokum dla każdego, kto doceni funkcjonalny układ, spokojne i zielone otoczenie oraz atrakcyjne położenie komunikacyjne.
Dostępne mieszkania w tej inwestycji
Nazwa | Rzut | Pokoje | Powierzchnia | Piętro | Cena | Status |