Nowe mieszkanie na sprzedaż 3 pokoje Kraków Wzgórza Krzesławickie, 55,46 m2, 3 piętro - nr III-B2.M12
Oferta sprzedaży od ATAL S.A.
Kraków, Wzgórza Krzesławickie, ul. Gustawa Morcinka 13/D (8,5km od centrum Krakowa)

Główne cechy mieszkania
Ważne informacje
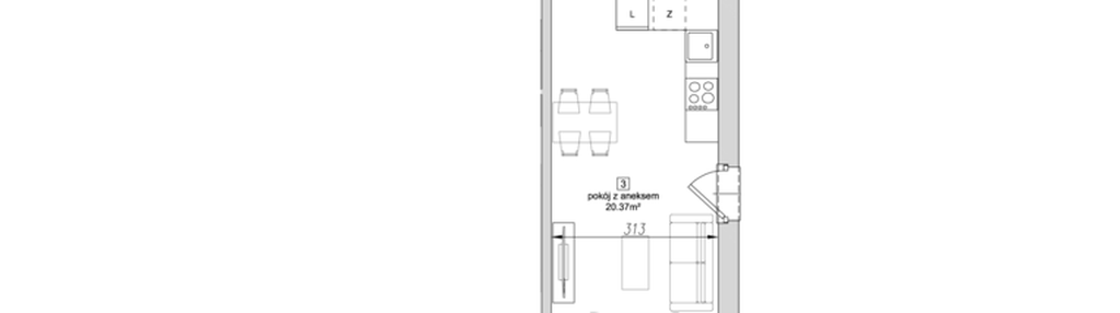
Mieszkanie 3 pokojowe
Dodatkowe informacje
Udogodnienia

Plac zabaw

Winda
Inwestycja
Strefa Cegielnia 3
małopolskie, Kraków, Wzgórza Krzesławickie
Strefa Cegielnia 3 powstanie w spokojnej części Krakowa, w dzielnicy Zesławice, przy ulicy Gustawa Morcinka. W ofercie znajdzie się 137 mieszkań o funkcjonalnych układach od 1 do 4 pokoi. Zielona okolica, dogodny dostęp do sklepów oraz placówek edukacyjnych, czy bliskość drogi S7, sprawią, że będzie to doskonałe miejsca do życia zarówno dla singli, jak i rodzin. Projekt Strefa Cegielnia wyróżni oryginalna architektura, która nawiąże do przemysłowej historii tego obszaru. Całe osiedle utrzymane będzie w eleganckiej kolorystyce, przy wykorzystaniu naturalnych materiałów i wykończeniowych tj. klinkieru imitującego cegłę, szkła oraz betonu. Dzięki temu inwestycja zyska ponadczasowy charakter, a jednocześnie doskonale wkomponuje się w okoliczną zabudowę. Otoczenie inwestycji zachęci mieszkańców do aktywnego spędzania wolnego czasu i przebywania na świeżym powietrzu. Projektanci zadbali o przestrzenie wspólne, na których pojawią się zielone nasadzenia oraz elementy małej architektury – ławeczki, leżaki. Dla najmłodszych stworzony zostanie plac zabaw. Najbliższa okolica inwestycji nieustannie się rozwija, oferując mieszkańcom coraz więcej udogodnień. Bliskość Południowej Obwodnicy Krakowa pozwoli na sprawne poruszanie się po północnych terenach miasta, a także łatwy dojazd do autostrady A4. Dzięki temu dotarcie do dużych centrów handlowych, szkół czy pracy będzie znacznie szybsze. Osoby poruszające się komunikacją miejską mogą skorzystać z przystanku autobusowego zlokalizowanego zaledwie 5 minut od inwestycji. W bezpośrednim sąsiedztwie znajdują się także sklepy spożywcze, gdzie mieszkańcy mogą zrobić podstawowe zakupy. Inwestycja Strefa Cegielnia 3 to doskonałe rozwiązanie dla osób poszukujących swojego miejsca w spokojnym miejscu, z dala od zgiełku miasta. Bliskość terenów zielonych ułatwi rekreację, natomiast łatwy dostęp do kluczowych punktów komunikacyjnych pozwoli na sprawny dojazd do wielu punktów Krakowa.
Dostępne mieszkania w tej inwestycji
| Nazwa | Rzut | Pokoje | Powierzchnia | Piętro | Cena | Status |