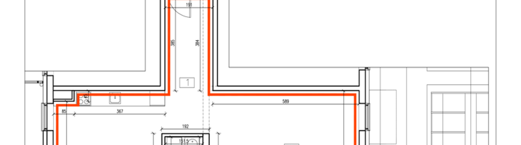
Nowe mieszkanie na sprzedaż 3 pokoje Kraków Podgórze, 70,32 m2, 1 piętro - nr 18
Oferta sprzedaży od Grupa Arkada
Kraków, Podgórze, ul. Kalwaryjska 74 (2,9km od centrum Krakowa)

Główne cechy mieszkania
Ważne informacje
Mieszkanie 3 pokojowe
Dodatkowe informacje
Udogodnienia

Rowerownia

Winda

Klimatyzacja
Przyroda

Park
Inwestycja
Alchemik74
małopolskie, Kraków, Podgórze
Stare Podgórze to miejsce pełne niezwykłej atmosfery rozsławione na wieki przez mistrza Jana Twardowskiego i jego szkołę magów. Nad tą wyjątkową dzielnicą od zawsze unosił się duch tajemniczości. Dziś ta malownicza część Krakowa swoją dawną magię, opartą na zaklęciach i miksturach, wzbogaca o nową – niezwykłą atmosferę rozwijającej się i coraz modniejszej dzielnicy naszego pięknego miasta. Tu właśnie powstaje ALCHEMIK, miejsce, z którym możesz związać swoją przyszłość. Projektowany budynek będzie składał się z dwóch części zróżnicowanych pod katem wysokości, połączonych ze sobą garażem podziemnym oraz parterem z częścią usługową. Frontowa bryła budynku zaplanowana została pod lokale użytkowe oraz jeden apartament mieszkalny z widokowym tarasem na ostatnim piętrze. Druga, niższa bryła budynku wkomponowana subtelnie w część dziedzińca tworzyć będzie niższą, czterokondygnacyjną partię budynku. Przeznaczona zostanie pod 12 lokali mieszkalnych o zróżnicowanym metrażu od 25 m2 do 148 m2. Budynek wyposażono w dwie niezależne klatki schodowe, cichobieżne windy oraz garaż podziemny. Wejście do budynku oraz wjazd do garażu będzie odbywał się z ulicy Kalwaryjskiej.
Dostępne mieszkania w tej inwestycji
| Nazwa | Rzut | Pokoje | Powierzchnia | Piętro | Cena | Status |