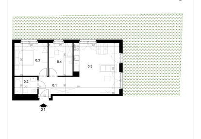
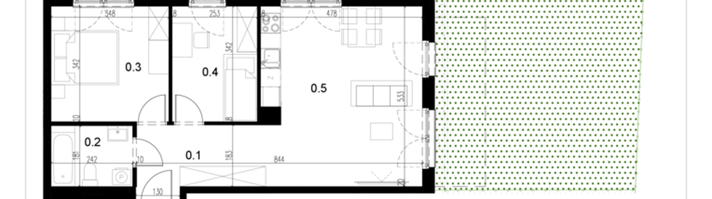
Nowe mieszkanie na sprzedaż 3 pokoje Kraków Podgórze, 56,83 m2, parter - nr LM21
Oferta sprzedaży od Kameralna Koszykarska
Kraków, Podgórze, ul. Koszykarska 20b (3,4km od centrum Krakowa)

Główne cechy mieszkania
Ważne informacje
Mieszkanie 3 pokojowe
Dodatkowe informacje
Udogodnienia

Rowerownia

Plac zabaw

Winda
Inwestycja
Kameralna Koszykarska
małopolskie, Kraków, Podgórze
Kameralny klimat, nowoczesny styl Kameralna Koszykarska to inwestycja stworzona z myślą o tych, którzy cenią spokój, wygodę i ponadczasowy design. Prosta, elegancka bryła budynków uzupełniona jest starannie zaprojektowanymi nasadzeniami wokół, dzięki którym osiedle zyskuje przytulny, sąsiedzki charakter. Przestrzenie wspólne zachęcają do spotkań, a otoczenie pełne roślin sprzyja codziennemu odpoczynkowi. Od pierwszej chwili wiesz, że to Twój adres w Krakowie. Przestrzeń na świeżym powietrzu Lubisz wypić poranną kawę na balkonie, zjeść kolację w ogrodzie, a może spędzić wieczór na tarasie z widokiem? Tu masz taką możliwość – w zależności od wybranego mieszkania możesz cieszyć się własnym ogródkiem, przestronnym balkonem lub wyjątkowym tarasem na dachu. Dla Twojej wygody zaplanowaliśmy również komfortowe miejsca parkingowe, zarówno w garażu podziemnym, jak i na terenie inwestycji. Udogodnienia na wyciągnięcie ręki W Kameralnej Koszykarskiej zawsze czujesz się bezpiecznie. Cały teren jest ogrodzony, monitorowany, ze zdalnie sterowaną bramą i wideodomofonem, a starannie zaplanowane oświetlenie zewnętrzne zapewnia komfort także po zmroku. Do dyspozycji mieszkańców jest rowerownia z miejscem serwisowym, plac zabaw oraz wyjątkowa strefa do kąpieli psów, dzięki której zadbasz o pupila przed wejściem do mieszkania. W budynkach działają nowoczesne windy, a ogrzewanie i ciepła woda z MPEC zapewniają oszczędność i wygodę niezależnie od pory roku. Zielone dachy to nie tylko efektowny element architektury, ale też rozwiązanie, które realnie wpływa na Twój komfort – poprawiają mikroklimat, zwiększają izolację cieplną i pomagają obniżyć temperaturę w upalne dni.
Dostępne mieszkania w tej inwestycji
| Nazwa | Rzut | Pokoje | Powierzchnia | Piętro | Cena | Status |