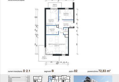
Nowe mieszkanie na sprzedaż 3 pokoje Kraków Podgórze, 72,83 m2, 2 piętro - nr D 2.1
Oferta sprzedaży od Chemobudowa-Kraków S.A.
Kraków, Podgórze, ul. Pana Tadeusza 7 (2,7km od centrum Krakowa)

Główne cechy mieszkania
Ważne informacje
Mieszkanie 3 pokojowe
Dodatkowe informacje
Udogodnienia

Usługi w budynku

Winda

Rowerownia
Przyroda

Park
Inwestycja
Nowe Zabłocie
małopolskie, Kraków, Podgórze
Odkryj NOWE ZABŁOCIE – wyjątkowe miejsce do życia w Krakowie! Zaufaj naszemu 75-letniemu doświadczeniu w branży budowlanej, uhonorowanemu godłem TERAZ POLSKA, popartemu realizacją ponad 1200 inwestycji budowlanych. Wybierz apartament w realizowanej przez CHEMOBUDOWĘ – KRAKÓW nowej inwestycji mieszkaniowej na krakowskim Zabłociu! Zamieszkaj w miejscu o bogatej historii, której ślady można odnaleźć w odrestaurowanych budynkach przemysłowych i zabytkach, dzielnicy z klimatycznymi kawiarniami, restauracjami, galeriami sztuki i centrum kulturalnym, z łatwym dostępem do wszelkich udogodnień. To właśnie tu, w Krakowie, przy ul. Pana Tadeusza 7 powstaje unikalna inwestycja mieszkaniowa NOWE ZABŁOCIE. Na działce o pow. 73 arów powstaje 2-segmentowy, 8 kondygnacyjny budynek mieszkalny z funkcją usługową na parterze. W sumie znajdzie się w nim 120 mieszkań 2-, 3-, 4-, 5-pokojowych o zróżnicowanych metrażach. W większości dwustronne układy mieszkań z obszernymi tarasami, loggiami lub balkonami zapewnią nie tylko komfortową przestrzeń, ale także piękne widoki, dzięki dużym przeszkleniom w każdym apartamencie. Co ważne, budujemy wyłącznie z najlepszych materiałów, co zapewnia trwałość i estetykę na lata. Doskonała komunikacja z całym Krakowem sprawia, że apartamenty NOWEGO ZABŁOCIA są idealnym miejscem do życia. Bliskość przystanków tramwajowych, autobusowych i kolejowych oraz sieć ścieżek rowerowych zapewniają łatwy i szybki dojazd do centrum miasta oraz innych kluczowych punktów Krakowa. Sąsiedztwo z Bulwarami Wiślanymi i licznymi parkami sprawia, że jest to idealne miejsce na spacery, jogging czy po prostu relaks na świeżym powietrzu. To świetne miejsce dla osób ceniących sobie bliskość natury w miejskim otoczeniu. Gwarantujemy najwyższą jakość wykonania i dbałość o każdy detal Twojego mieszkania. Apartamenty NOWE ZABŁOCIE: Planowana data zakończenia budowy: styczeń 2026 r. Planowana data przeniesienia własności: lipiec 2026 r.
Dostępne mieszkania w tej inwestycji
| Nazwa | Rzut | Pokoje | Powierzchnia | Piętro | Cena | Status |