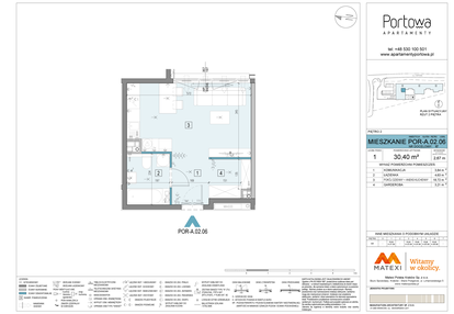
Nowe mieszkanie na sprzedaż 1 pokój Kraków Podgórze, 30,40 m2, 2 piętro - nr A.02.06
Oferta sprzedaży od Matexi Polska Sp. z o.o.
RezerwacjaKraków, Podgórze, ul. Portowa 43 (2,4km od centrum Krakowa)

Główne cechy mieszkania
Ważne informacje
Mieszkanie 1 pokojowe
Dodatkowe informacje
Udogodnienia

Plac zabaw

Rowerownia

Winda

Usługi w budynku
Przyroda

Park
Inwestycja
Apartamenty Portowa
małopolskie, Kraków, Podgórze
Zabłocie to kolejna krakowska lokalizacja, w której powstaje nowy projekt Matexi Polska. Rewitalizacja tych terenów rozpoczęła się kilka lat temu, zaczynając od rejonów Podgórza, poprzez pofabryczne obszary ulicy Romanowicza, aż dotarła do okolic ulicy Portowej, która stanowi kolejny etap rozwoju nadbrzeżnego Krakowa. Zgodnie z planem zagospodarowania przestrzennego, Apartamenty Portowa to inwestycja, która wpisuje się w lokalny proces zmian, mający diametralnie odmienić okolicę i sprawić, że na mapie Krakowa pojawi się kolejna atrakcyjna lokalizacja mieszkaniowa. Na działce o powierzchni 33 arów powstanie 7-piętrowy budynek mieszkalny, w którym znajdzie się 99 mieszkań 1-, 2-, 3-, 4- i 5-pokojowych o różnych metrażach od 30 do 124 m2, lokale usługowe w części parterowej oraz 2-poziomowy parking podziemny. Większość z mieszkań będzie posiadała balkony, loggie lub własne ogródki.
Dostępne mieszkania w tej inwestycji
| Nazwa | Rzut | Pokoje | Powierzchnia | Piętro | Cena | Status |