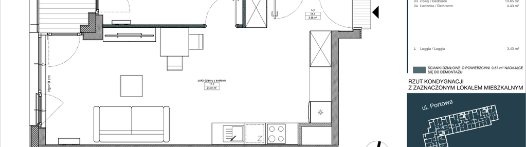
Nowe mieszkanie na sprzedaż 2 pokoje Kraków Podgórze, 43,49 m2, 1 piętro - nr 11
Oferta sprzedaży od YIT Development Sp. z o.o.
Kraków, Podgórze, ul. Portowa (2,3km od centrum Krakowa)

Główne cechy mieszkania
Ważne informacje
Mieszkanie 2 pokojowe
Dodatkowe informacje
Udogodnienia

Winda

Rowerownia

Klimatyzacja
Inwestycja
Portowa Zabłocie
małopolskie, Kraków, Podgórze
Portowa Zabłocie to inwestycja największego fińskiego dewelopera – YIT. Kameralna inwestycja Portowa Zabłocie obejmuje zaledwie 156 mieszkań, rozlokowanych na 7 piętrach – tak, by każdy z mieszkańców mógł poczuć się swobodnie. Na jej terenie znajdzie się także 5 lokali usługowych. Butikowa inwestycja Portowa Zabłocie jest dowodem na to, że nawet budynek zlokalizowany na postindustrialnym terenie może harmonijnie wkomponować się w miejski krajobraz. Projekt nawiązuje do historycznego, ceglanego budynku sąsiadującej, dawnej chłodni portowej. Szara cegła i szlachetny tynk o betonowej strukturze, w połączeniu z ciepłymi, drewnianymi elementami w loggiach i stolarce okiennej, nadadzą mu wyjątkowy charakter. Niepowtarzalny urok inwestycji można dostrzec też w jej detalach. Wysokiej jakości materiały zostaną tu wykorzystane do stworzenia samonośnych szklanych balustrad, rozrzeźbionego narożnika czy do wyróżnienia przestrzeni usługowej, która będzie charakteryzować się grafitową okładziną z klinkieru. Nowoczesne i funkcjonalne mieszkania oraz wewnętrzny dziedziniec, stanowiący przestrzeń do rekreacji, każdego dnia pozwolą Ci poczuć, że mieszkasz w przemyślanym miejscu tworzonym z pasją.
Dostępne mieszkania w tej inwestycji
| Nazwa | Rzut | Pokoje | Powierzchnia | Piętro | Cena | Status |