Nowe mieszkanie na sprzedaż 2 pokoje Kraków Podgórze, 41,74 m2, parter - nr 1
Oferta sprzedaży od Platforma Mieszkaniowa
Kraków, Podgórze, ul. Przewóz 28 (4km od centrum Krakowa)

Główne cechy mieszkania
Ważne informacje
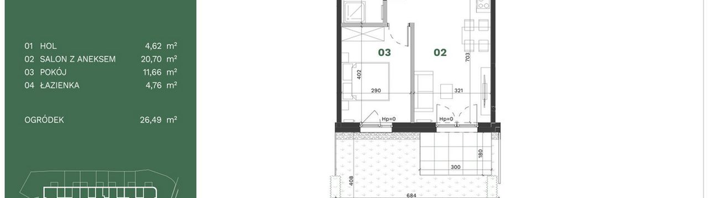
Mieszkanie 2 pokojowe
Dodatkowe informacje
Przyroda

Park
Inwestycja
Przewóz Solar Garden
małopolskie, Kraków, Podgórze
Przewóz, twoje miejsce w Krakowie. Inwestycja Przewóz Solar Garden to budynek, w których będzie znajdować się 65 komfortowych i nowoczesnych mieszkań o zróżnicowanej powierzchni, tak aby wyjść naprzeciw potrzebom wszystkich naszych Klientów – rodzin, par, singli. Budynki położone są w pobliżu atrakcyjnych terenów zielonych, takich jak Zalew Bagry oraz dwa parki. W okolicy funkcjonuje wiele przedszkolii szkół. Inwestycja jest bardzo dobrze skomunikowana z centrum oraz z innymi dzielnicami Krakowa. Przewóz Solar Garden to inwestycja przede wszystkim ekologiczna. Na dachu budynku zostaną zamontowane panele fotowoltaiczne, dzięki którym mieszkańcy będą mniej płacić za prąd zużywany do oświetlenia i funkcjonowania części wspólnych.
Dostępne mieszkania w tej inwestycji
| Nazwa | Rzut | Pokoje | Powierzchnia | Piętro | Cena | Status |