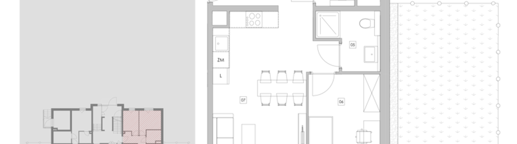
Nowe mieszkanie na sprzedaż 4 pokoje Kraków Prądnik Biały, 66,83 m2, parter - nr 88.0.01
Oferta sprzedaży od ATAL S.A.
Kraków, Prądnik Biały, ul. Starego Dębu (6,5km od centrum Krakowa)

Główne cechy mieszkania
Ważne informacje
Mieszkanie 4 pokojowe
Dodatkowe informacje
Udogodnienia

Winda
Inwestycja
ATAL Bronowice
małopolskie, Kraków, Prądnik Biały
W zielonym rytmie Bronowic ATAL Bronowice to nowoczesna inwestycja przy ul. Starego Dębu w Krakowie. Projekt połączy spokojny charakter dzielnicy z wygodą codziennego życia w mieście. Kameralna zabudowa, zieleń i dopracowana architektura stworzą przestrzeń, w której będzie można po prostu dobrze zamieszkać. To idealne miejsce dla osób, które szukają funkcjonalnego mieszkania w dobrze skomunikowanej części Krakowa – niezależnie od etapu życia. Osiedle dopasowane do potrzeb Niska i nowoczesna zabudowa wkomponowana w otoczenie zieleni stworzą kameralny charakter osiedla. W ofercie znajdą się mieszkania od 2 do 4 pokoi o powierzchni od ok. 40 do 80 m². Przemyślane układy pomieszczeń ułatwią aranżację przestrzeni zarówno dla singli, jak i rodzin. Dla wygody mieszkańców przewidziano garaże podziemne, naziemne miejsca postojowe, plac zabaw i miejsca rekreacji. Nowoczesna architektura i sprawdzone rozwiązania Architektura ATAL Bronowice połączy prostotę z elegancją. Jasne elewacje, duże przeszklenia i starannie dobrane detale nadadzą budynkom nowoczesny, ale stonowany charakter. Zastosowane materiały wykończeniowe zagwarantują trwałość i estetykę na lata. Każde mieszkanie będzie posiadało balkon, taras lub ogródek, zapewniając prywatną przestrzeń na świeżym powietrzu. Teren osiedla zostanie oświetlony, uporządkowany i objęty monitoringiem, co zwiększy poczucie bezpieczeństwa. Wygodna lokalizacja – blisko miasta, z dala od zgiełku Inwestycja powstaje w rozwijającej się części Krakowa, która zachowuje spokojny, mieszkaniowy charakter. W pobliżu znajdują się sklepy, punkty usługowe, placówki medyczne oraz liczne szkoły i przedszkola. Dogodny dostęp do komunikacji miejskiej umożliwi szybki dojazd do centrum, a bliskość autostrady A4 i lotniska w Balicach ułatwi podróże służbowe i weekendowe wyjazdy. W otoczeniu zieleni Bezpośrednie sąsiedztwo terenów rekreacyjnych to duży atut inwestycji. W okolicy znajdują się ścieżki spacerowe i rowerowe, które zachęcają do aktywnego wypoczynku na świeżym powietrzu. Zadbana zieleń i kameralna atmosfera tworzą warunki sprzyjające równowadze między pracą a odpoczynkiem.
Dostępne mieszkania w tej inwestycji
| Nazwa | Rzut | Pokoje | Powierzchnia | Piętro | Cena | Status |