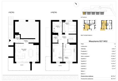
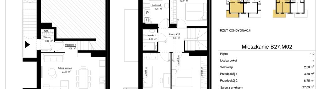
Nowe mieszkanie na sprzedaż 4 pokoje Kraków Bronowice, 89,31 m2, 1 piętro - nr 27.2
Oferta sprzedaży od Imperial Capital
Kraków, Bronowice, ul. W. Tetmajera (6,3km od centrum Krakowa)

Główne cechy mieszkania
Ważne informacje
Mieszkanie 4 pokojowe
Inwestycja
River Park
małopolskie, Kraków, Bronowice
River Park Tetmajera to wyjątkowe osiedle, które powstało z myślą o osobach ceniących zieleń, spokój atmosferę krakowskich Bronowic. Położone wzdłuż ulicy Truszkowskiego, w sąsiedztwie urokliwej ulicy Tetmajera, osiedle oferuje idealne połączenie kameralności z dogodnym dostępem do miejskich udogodnień. To tutaj historia spotyka się z nowoczesnością, a wszystko to możesz chłonąć z własnego tarasu lub ogródka. Funkcjonalność, przestrzeń i niebanalna architektura River Park Tetmajera to kilkanaście piętrowych budynków, rozstawionych szeroko między sobą, co zapewnia poczucie swobody i prywatności. Przestronne, dwupoziomowe mieszkania: ● Powierzchnie powyżej 70 m², zapewniające komfort i przestrzeń dla każdego. ● Do mieszkań przynależą ogródki, przestronne tarasy lub balkony, które stanowią idealne miejsce do relaksu i kontaktu z naturą. ● Duże przeszklenia sprawiają, że wnętrza są jasne i doświetlone, pozwalając cieszyć się widokiem otaczającej zieleni. Nowoczesne rozwiązania dla Twojej wygody: ● Miejsca parkingowe zlokalizowane tuż przy każdym domu. ● Odległość między budynkami pozwala poczuć się swobodnie, z dala od zgiełku wielkiego miasta. Komunikacja: Bronowice są dobrze skomunikowane z resztą Krakowa, co zapewnia łatwy dojazd do pracy, szkoły czy centrum miasta. ● Stacja kolejki SKA – rozbudowana sieć komunikacji miejskiej zapewnia regularne połączenia. ● Najbliższy przystanek – Truszkowskiego 01 ● Droga krajowa nr 7 – przy zachodniej granicy dzielnicy biegnie droga krajowa nr 7, która znacząco ułatwia podróże poza miasto. Edukacja: Mieszkańcy mogą korzystać z bogatej oferty edukacyjnej. Przedszkole Gwiazdeczka – 600 m Szkoła Podstawowa nr 50 – 900 m Przedszkole Niepubliczne Pluszowy Miś – 1,2 km Zespół Szkół Ogólnokształcących nr 53. oraz Szkoła Podstawowa nr 51 im. S. Wyspiańskiego – 5 min autem Publiczne Przedszkole Stacyjkowo – 6 min autem Opieka medyczna: Centrum Medyczne Nido – 700 m Centrum Medyczne Medicover – 7 min autem Sklepy i usługi: Jak daleko jest do najbliższego sklepu? Easy Auchan – 700 m Lewiatan – 2 min autem Delikatesy Włoskie – 4 min autem Biedronka – 5 min autem Sport: Bliskość terenów rekreacyjnych oraz obiektów sportowych to mocna strona tej lokalizacji. Siłownia na świeżym powietrzu – 500 m od inwestycji. Park Tetmajera – 5 min pieszo Park Uroczysko Gaik – 9 min autem Park Młynówka Królewska – 7 min autem
Dostępne mieszkania w tej inwestycji
| Nazwa | Rzut | Pokoje | Powierzchnia | Piętro | Cena | Status |